Humedad por condensación en vivienda
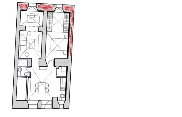
He reformado una vivienda antigua que tenía problemas de humedad, principalmente, por capilaridad. Es un bajo con muros de piedra de casi 1 metro de ancho, de los cuales 2 de ellos (lateral y fachada posterior) están soterrados (adjunto plano de la vivienda señalados en rojo), aunque el de la fachada posterior tiene 2 ventanas que están a ras de la acera.
La reforma ha sido integral: se ha hecho una solera nueva con aislante, nuevos trasdosados con cámara de aire, se han puesto ventanas con rotura de puente térmico, se ha pintado con cal para que los muros de piedra respiren, se ha puesto calefacción por split con bomba de frío y calor.
La inquilina que vive, tras estas semanas de intensas lluvias, me comenta que está saliendo moho en algunos muros, además de al rededor de ventanas, a pesar de que ventila a diario y utiliza de manera constante un deshumificador en la estancia con más humedad. El moho lo elimina con lejía, pero a los pocos días, vuelve a aparecer.
La vivienda tiene un alto porcentaje de humedad relativa, incluso en verano, pero ventilando no ha aparecido moho hasta ahora con las lluvias.
¿Puede estar empeorando la calefacción por split la condensación de la vivienda?
Para solucionar este tipo de humedades por condensación, ¿es buena solución instalar un sistema de ventilación mecánica?
Agradecería consejos para intentar reducir la humedad por condensación que tiene la vivienda si fuera posible.
Gracias y un saludo.




