¿Las medidas del pasillo son normales?
Hice una pregunta ayer titulada MUY URGENTE sobre las medidas del pasillo.
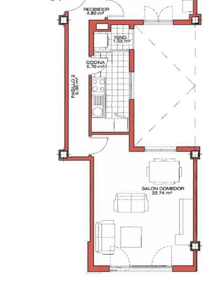
Hoy he ido a medir de nuevo. El pasillo tiene 86 cm de ancho. La puerta de entrada al salón 69 centímetros (lo que es el hueco) y las hojas de las ventanas del salón (se abren las dos laterales, la del medio es fija) entre 76 y 78 cm, con una barandilla ( el hueco desde la barandilla hacia arriba es de 99 cm). No quiero abusar, pero ya que ayer me contestó tan amablemente, me gustaría saber su opinión sobre estas "nuevas medidas".
Muchas gracias.
He subido una imagen mas grande

1 respuesta
Respuesta de Estudio de Arquitectura e Ingeniería
1
