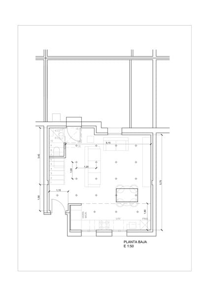
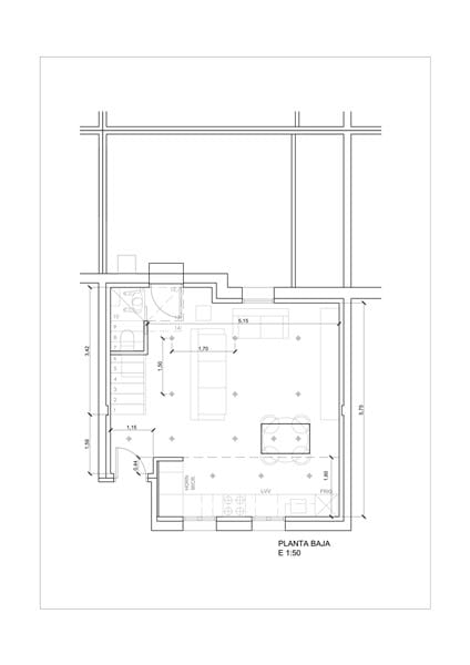
Distribución de iluminación en salón cocina
amig@s:
Soy novato en esto y espero que me podáis echar un a mano y que sea este el lugar donde publicarlo, gracias de antemano.
Hemos hecho una rehabilitación en nuestra vivienda y llega el momento de iluminar, nosotros hemos pensado en poner focos led empotrados en techo altura 2.50m y encima de la mesa de comer dos casquillos colgando con bombillas vintage, en la zona de la cocina el techo esta bajado a 2.30 y hemos pensado en downlight led de empotrar. El problema es que la distribución que hemos hecho no sabemos si será suficiente o escasa, hemos hecho dos versiones una con mas focos y otra con menos.
Si nos podéis orientar sobre que watios debemos meter, temperatura de la luz en cada zona o si lo haríais de otra manera os lo agradeceríamos un montón.
Os ajunto las dos soluciones que hemos pensado, encendidos tengo 4 circuitos independiente para poder encender.





