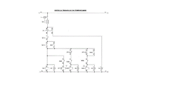
Investigar el diagrama de control de arranque estrella-triangulo

Responde e investigar el diagrama de control de un arranque estrella-triangulo donde se use el temporizador en el conexionado.
2 respuestas
Respuesta de albert buscapolos Ing°
2
Respuesta de vicente mora
1
