Aislamiento de mi dormitorio con el salón del vecino
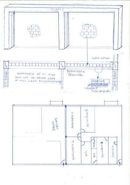
Me dirijo a don Francisco Poveda, para ver si con su profesionalidad me puede echar una mano. Mi piso da mi dormitorio con el comedor del vecino, lo separa un solo tabique de ladrillo plano ese constructor que hizo eso hace 50 años se lucio, mis vecinos de hace veinte años hacían su vida en otras estancias y nunca me han molestado, ya han fallecidos y los jóvenes que viven ahora no repetan el sueño de nadie a pesar de los golpes que les doy para que bajen el nivel de sonidos tanto de hablar como de música o televisión. Claro que el perjudicado somos nosotros y he tenido que empezar a hacer algo. Compre copopren de 40 mm y lo pegue con cola de contacto a la pared y un tablero de pladul de 13mm también pegado sobre el copopren, pero sigo escuchando a los vecinos. No me importaría perder algo de espacio, por eso me dirijo a usted para ver que puedo hacer. También me gustaría saber si el dicho tabique es denunciable, por si se tuviera que involucrar al otro vecino a que también se obligara a participar en el aislamiento. Le quedo muy agradecido.

