Copopren+ pladur, o pared ladrillo+ fibra vidrio para aislar pared acústicamente
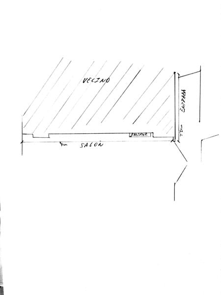
A ver si pueden darme un poco de luz a mi problema. Tengo una pared de mi salón que linda con la de un vecino, que tiene una cocina americana. Sin necesidad de que levanten especialmente la voz, se oyen hasta las conversaciones. Y no digamos ya la televisión. Además al tener los muebles de cocina en la pared, también se sienten ciertos sonidos de impacto de las puertas y cajones.
He estado mirando por los foros, y parece que la solución típica es poner capa de copopren más pladur.
Me surgen muchas dudas (sin considerar si no hay demasiada transmisión estructural del sonido):
¿Esto puede proporcionar una disminución ligeramente apreciable, o un aislante real?,
Hay dos enchufes, y un radiador que habrá que mover. Como se puede sujetar este radiador, ¿en el pladur resultante?
En el suelo tengo parque de madera maciza pegado, supongo que habría que cortarlo en la parte de la nueva pared.
¿Sería una buena idea primero pegar un aislante contra impactos, después el copopren y luego el pladur?
He visto que se recomendaba en ciertos casos poner una pared de ladrillo con aislante entre la nueva y la existente, como la mejor solución. He leído varias recomendaciones al respecto de Francisco en Todoexpertos, y me parece la persona con más experiencia. Puede ser mucho mejor en la realidad esta opción aunque teóricamente sobre el papel, ¿aísle más la solución copopren + pladur?



