Reparar motosoldadora Esab KHH 270 IH
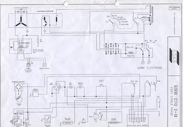
Estimados tengo una motosoldadora Esab la misma dejo de generar corriente la lleve a reparar y no me dieron solución soy de San luis, Argentina, tengo conocimientos en electricidad pero no me alcanzan para este problema, estuve buscando información de la maquina y encontré un solo plano de la misma y por lo que vi es un generador asincrónico y tiene 3 bancos de capacitores para la excitación, puse la maquina en marcha (el motor es Honda Gx620) y me genera en la salida de 220v, 38v a 40 v, cuando le coloco en uno de los bornes de los capacitores 12v de la batería, me genera los 220 v, a mi entender estarían los capacitores averiados, el problema es que acá no consigo los capacitores que son de 3x60 uf por 550v y 3x70ufx550v para reemplazarlos, les adjunto el link del plano de la maquina a ver si me pueden dar una ayuda .https://www.taringa.net/posts/ciencia-educacion/11986524/Manuales-Maquinas-Soldadoras-Conarco-FS.html







Si no has resuelto el problema aun te podemos [email protected] - Marco Silva