Distribución de estancias en reforma integral
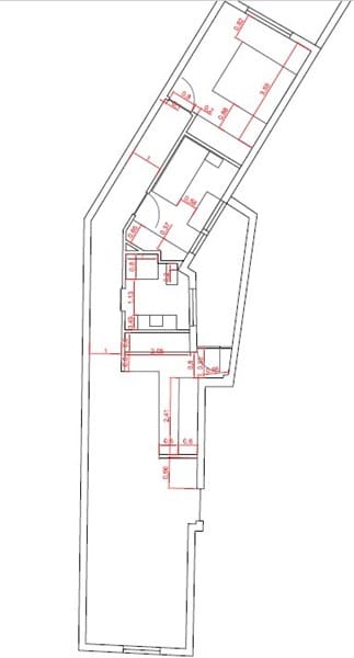
Me han propuesto la siguiente distribución del piso, no hay muros de carga, actualmente ya no hay ninguna pared.
Me gustaría saber si es posible cambiar el pasillo a 0,90cm o se vería muy efecto cueva
También si la dimensión del baño y la habitación pequeña son suficientes.

1 respuesta
Respuesta de Decorar con corazón
1