Reforma de baño para quitar bañera
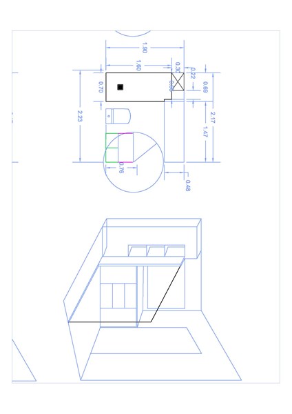
Me estoy planteando reformar todo el baño con la excusa de quitar la bañera y poner un plato de ducha. El problema aparece con las dimensiones del baño y la disposición de los sanitarios. La cuestión es que el espacio para el mueble encimera es de 174 cm pero con un fondo sólo de 35 cm. El espacio de la bañera será 1,60 pero seguido de una columna con tan solo 43 cm de ancho, lo cual hace que haga un plato de ducha de 1,60 porque sino me genero un hueco de 40 cm, con el inconveniente de que se pueda salpicar agua al mueble que pretendo hacer de medida en la pared de 174 cm. Esto lo pensaba solucionar con una mampara de un fijo de 1,0 m y un abatible de 30 cm, pero si te digo la verdad tengo innumerables dudas.
Además el mueble que debo hacer en la pared de 174 cm al tener sólo un fondo de 35 cm me obliga a hacer una encimera a medida de corian, resina,... Pq es imposible encontrar un lavabo tan pequeño, y la idea de que sobresalga el lavabo del mueble no me gusta nada.
Adjunto te remito un boceto con las medidas y la distribución actual de mi baño para ver sí me pudieras ayudar con todo este dimensionamiento que he intentado explicar. Muchas gracias





