Colocación receptor somfy caja mecanismos
Intento colocar un inireceptor somfy en una caja de mecanismos de una persiana. Sigo las instrucciones de montaje pero no me va. Hay algo en el esquema que me falla.
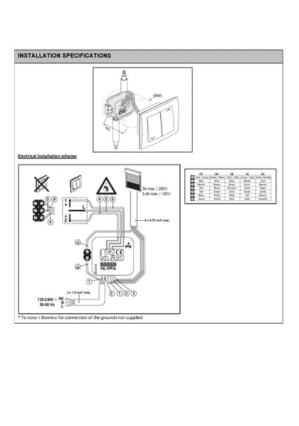
Adjunto foto de como tiene que quedar, todas las conexiones vienen explicadas.
En la conexión superior que va al motor tengo "bajada" "subida" "neutro-N-" "fase -L-" "neutro"
La parte inferior no tiene problemas es la conexión en bypas para el mecanismo.
El problema es con las conexiones superiores.
Subida y bajada, no hay problema, están identificadas claramente en el mecanismo cuando se desconectan,
El problemas está en la siguientes conexiones N L N
Y en los hilos que vienen del motor al mecanismo (solo 3, dos de subida y bajada y uno negro), Al lado del mecanismo pasa un cable azul que va al motor (¿el fase?).
El caso es que he conectado los cables que vienen del motor, el bajada señalado en el mecanismo al bajada del receptor, el subida al subida, y el cable negro que quité del mecanismo, al siguiente neutro. Resultado. Fusibles fundidos.
He puesto el negro en la siguiente conexión L, y sin funcionamiento,
¿Qué hago mal?
Adjunto foto de una empresa de persianas que lo explica.
Yo solo tengo libres los dos azules que se ven en la parte superior de la izda (subida y bajada) y uno negro (que iba al mecanismo antes de quitarlo donde va en el dibujo el blanco) y que al ponerlo seguido, como N, saltó el diferencial.
Gracias por la ayuda




