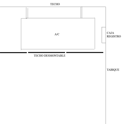
Máquina internior de aire acondicionado bloquea el acceso a una caja de registro
En el cuarto baño bajo de casa que tiene un techo de placas de yeso desmontable, me han instalado la maquina centralizada de aire acondicionado que va conectada a los conductos de la planta baja.
El problema es que han instalado la máquina de manera que no esta centrada en la parte superior de la habitación, si no que la han "arrimado" demasiado a uno de los tabiques, precisamente en el que se encuentra una caja de registro, además de las llaves de paso.
Debido a eso el acceso la maquina fisicamente ha bloqueado el acceso a la caja, haciendo casi imposible el poder trabajar con ella si fuera necesario, nisiquiera se le puede poner la tapadera.
He hablado con los instaladores para resituar la máquina mas centrada en el techo de la habitación, hay espacio de sobra. Pero parece que los instaladores no tienen intención de moverla porque les supondria un coste addicional.
He de añadir que la máquina ha sido colocada en ese lado a criterio del instalador, no he sido yo quien se lo ha indicado.
De hecho la maquina anterior que habia que se retiro hace años, estaba colocada en una posición mas centrada en el techo y no teniamos este problema.
Mi pregunta es si además del sentido común, ¿Existe alguna normativa ya sea el reglamento de electricidad o el de instalaciones de A/C, que especifique claramente que no se puede "taponar" cajas de registro, imposibilitando el acceso a las mismas?.
Adjunto un esquema y una fotografía:



