Como planificar conexión tubos bajantes desagüe con arquetas y alcantarillado calle en un local (planta baja).
En una finca vieja de 3 pisos, el tubo de desagüe central comunitario suele atascarse a menudo.
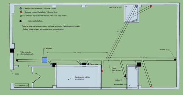
Hemos levantado el piso y la solera de la planta baja que es donde esta la arqueta y vamos a cambiar toda la tubería, ya que son tubos muy pequeños de 90mm y vamos aponerlos de 125mm.
He consultado con varios fontaneros y cada uno me dice una cosa.
-Unos están a favor de instalar la arqueta al final del recorrido para que recoja todos los tubos (Caja de Azul) Tal como esta el plano adjunto.
-Otros me dicen en cada bajante ponga una arqueta.
-Otros me dicen que mejor ponga un SifonTeja que lleva 2 tapones de registro, en vez de la arqueta y así evito malos olores. (Adjunto foto).
Como desde las bajantes hasta la arqueta hay muchos metros (casi 10 metros desde el patio luces A, así como del Inodoro D a la arqueta. Vean plano acotado), me preocupa que se vuelva a embozar de nuevo por no colocar las cosas como es debido.
Adjunto plano del local y de las bajantes y los inodoros y cocina de la planta baja.
Todas las bajantes van a llevar un acceso por la parte superior (Tapón registro roscado)

1-¿No debería poner otra arqueta en el punto de intersección C y en la bajante Patio de luces A?
2-¿Qué pendiente debería tener? ¿Solo un 2% es suficiente? ¿No convendría ponerle más inclinación para que NO se pararan los residuos sólidos?
¿Por favor algún profesional especializado me podría aconsejar? Agradecería una clara respuesta y explicación desarrollada. No soy profesional de la construcción. Cualquier duda estaré encantado de aclarla.