Cerramiento de patio-garaje, que permisos necesito?
Quiero unificar el patio con el garaje de mi vivienda, (dúplex adosado), actualmente el garaje esta techado con chapa y el patio sin techar, necesito informarme de que permisos de obra debería de solicitar y que costes conllevaran, aun no tengo muy claro si seria un cerramiento de techo de obra con teja o si una terraza transitable ya que una de mis dudas es si necesitaría los mismos permisos para ambas cosas.
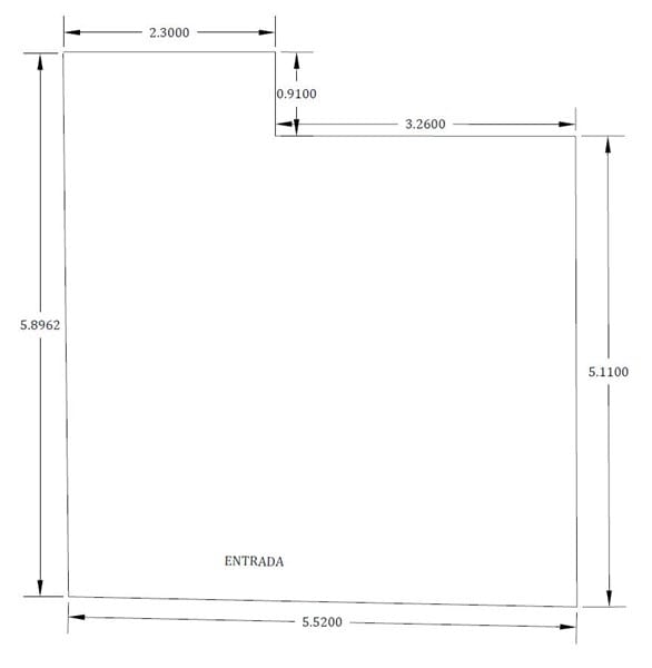
Adjunto un plano del patio y garaje en cuestión

La vivienda se encuentra en la Región de Murcia, las lineas del plano representan los muros.
También tengo la duda, de que sanción pueden ponerme por hacerlo sin pedir los permisos y si podrían obligarme a demolerlo.
1 respuesta
Respuesta de Poli Plos
1