Estufa de leña para calentar casa de piedra en Burgos
Estoy reformando una casa de piedra en Burgos y tengo que poner la calefacción. Voy a aislar bien el tejado y cambiar ventanas con doble acristalamiento.
La casa esta a 850m de altura y por las noches la temperatura en invierno baja a 0 grados. En el día igual esta a unos 5-8 grados de media.
No quiero invertir en grandes instalaciones, calderas de propano o pellets, ni energías sucias como el gasoil. Me gustaría pensar en un futuro poner paneles solares cuando (cruzo los dedos) el gobierno sea más consciente y solidario y ayude a la gente con energías limpias como es el caso de tantos países en europa. También a veces en invierno cuando nieva se corta la electricidad, así que no quiero quedarme sin estufas, como podría pasar con aparatos dependientes de red eléctrica) He visto que en Canadá y Estados unidos mucha gente funciona solo con estufas de leña, sin instalar radiadores de agua ni nada. Entonces estaba pensando en invertir en 2 buenas chimeneas de leña pero quiero ver si eso seria suficiente ya que no quiero pasar frio que tengo dos niños.
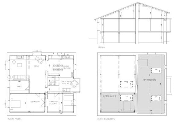
Tengo un espacio abierto de sala de estar-cocina, separado con una puerta de un metro y medio y otra puerta conectándolos de 1m. Osea se podría crear como una corriente circular en la que el aire esta circulando entre los espacios. La sala de estar tiene 47m2 (pero techos altos ya que no hay bajo cubierta, he calculado un volumen de 110m3) y la cocina/comedor tiene 35m2 (techo bajo, volumen de 64m3). Luego tengo 2 habitaciones y un aseo (todo en el mismo nivel, pero el calor debería ya repartirse dejando las puertas abiertas). Área total con habitaciones 145m2 (Volumen total 422m3).
Pensaba poner una Jotul F-400 (capacidad 300m3, max 12KW) en el salon y una mas chiquita en la cocina una F-602 ( capacidad 200m3, max 8.5KW) o asi. Quiza poner una estufa de bombona de butano con ruedas por si hace falta en las habitaciones un poco o el baño cuando tengamos que ducharnos (el agua caliente con gas butano tambien). No me importa otras marcas de estufa que no sea Jotul si teneis recomendaciones, pero se que esas son buenas, quiero invertir en buenas estufas que me duren muchos años.
¿Qué os parece expertos? ¿Funcionaria? Va a ser residencia habitual. Se que voy a ser esclava de la leña, ¿pero si la tengo en marcha todo el rato seria suficiente? Os lo agradezco mucho, ya que no encuentro nadie que me asesore.


