Pérdida de presión en caldera de gasoil
Tengo una caldera de gasoil marca FER GGNK 100 UNIT, que creo que es igual a la Ferroli GNK.
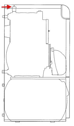
Desde hace un tiempo, tengo que rellenar la presión de la caldera cada 2 o 3 días. He estado vigilándola y me he dado cuenta de que, cuando el quemador se enciende para calentar, la caldera escupe un poco de agua por un taponcito de plástico que hay en la parte alta del cuerpo de la caldera. Creo que debe ser el purgador automático. Lo he marcado con una flecha en esta imagen:

¿Será esa la razón de la pérdida de presión? Si es así, ¿Cuánto puede costar que un técnico me repare esa avería? Vivo en un pueblo y sólo el desplazamiento ya me va a costar una pasta, así que si es una chorrada, tal vez yo misma lo pueda arreglar.
1 respuesta
Respuesta de vilaclima
2
