Calculo de conductos aire acondicionado con fibra

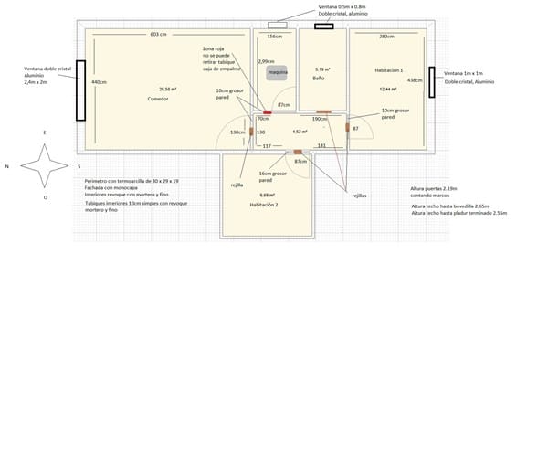
Hola! Me dieron una maquina de aire por conducto de 7200frigorias con un caudal de 1800m3/h que su anterior propietario hizo obras en casa y ya no le servia (la maquina tiene 1 año me a dicho). Entonces nos la quedamos nosotros pero estoy atascado sobre el dimensionamiento de los conductos. Se que por las rejillas como máximo debe tener una velocidad de máxima de 3 m/s por tema de ruidos, y que en la zona de repartición 4.. 5.. M/s de velocidad.
¿Alguien puede ayudarme a conseguir hacer estos cálculos?
He dejado el croquis de la casa.
2 respuestas
Respuesta de Sergio rota merino
1
Respuesta de vilaclima
1


