¿Pueden añadir rotura de puente térmico y cerradura 3 puntos a una puerta de aluminio ya hecha?
Había encargado una puerta de PVC por el tema de aislamiento de frío y ruidos. Midieron mal, no cabía. Trajeron otra y sin avisar del cambio la trajeron de aluminio. Afirman que tiene rotura de puente térmico pero no me lo creo.
También había pedido cerradura de seguridad de tres puntos porque es para una entrada en la que necesito más seguridad y me encuentro con una cerradura cutre que ni se si puede cambiar tras haber hecho el agujero para esa cerradura tipo pico de loro. Y con un solo punto encuentro floja la puerta, poco unida al marco. ¿Pueden modificar todo eso una vez hecha la puerta?
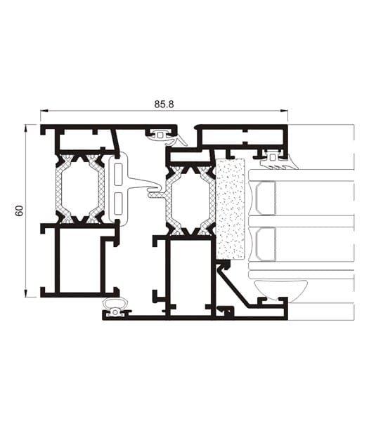
Por el hueco de la cerradura en el marco, la hoja o por debajo (el lado que da al suelo en el que se nota el metal al descubierto) no encuentro nada de plástico o goma que parezca romper el puente térmico. Tampoco por donde van a poner los cristales.
Me cobran lo mismo que por la puerta presupuestada de PVC, pero ¿cuánto ahorran al poner cerradura de un solo punto y sin RPT? (Por si pido compensación o ya ni se qué hacer con la puerta)
¿Y sería factible pedir que se la lleven y pongan el puente térmico y los tres puntos para cerradura una vez hecha la puerta?
Gracias.

¿Es normal lo de esas muescas en el marco detrás de la cerradura?

Con esos agujeros hechos para la forma de la otra cerradura ¿puedo pedir que pongan cerradura decente o ya no vale con ese hueco?

Gracias por vuestra ayuda. Me urge pensar qué hacer con la dichosa puerta.




