Como hago División Cerramiento Cristal Oficina?
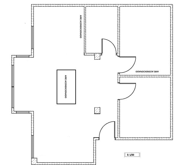
Adjunto foto de piso para oficinas. En la parte de la derecha hay dos despachos cerrados y en la parte diáfana de la izquierda queremos hacer un cerramiento de cristal para disponer de dos despachos,. Uno grande con mesa de trabajo y mesa de juntas y otro pequeño con una mesa de trabajo.
Queremos que la entrada a ambos despachos sea independiente y lo ideal es no renunciar al aire acondicionado en ninguno de los huecos.
Os agradeceríamos que nos dieses alguna idea para optimizar el espacio.
Muchas gracias.
Saludos,
Itziar

Respuesta de Decorar con corazón
2
1 respuesta más de otro experto
Respuesta de Roberto Muradas Martinez
1
