Aislamiento en una vivienda unifamiliar
Voy a realizar una reforma integral en una casa de la huerta en Murcia. No tiene muchas humedades y está bien conservada pero quiero ponerle un aislante térmico que me sirva también para las humedades, tema acústico es secundario ya que es una zona tranquila.
El problema es que tengo las estancias muy justas de tamaño y el techo bajo (2,30 metros).
Por lo que estado leyendo creo que el aislante que menos ocupa es el reflexivo (unos 3 cm)y ponérselo solo a los muros exteriores o si poner poliuretano en la fachada y así no pierdo espacio en las estancias de la casa, aun que si elijo esta segunda opción debería de poner algún aislante en el suelo. ¿Qué opción seria mejor? Acepto cualquier recomendación ya que ando algo perdido en estos temas
3 respuestas
Yo te recomendaría placas Sate dan muy buen resultado y en lugares que no tengas mucho espacio las hay más delgadas.
- Compartir respuesta
 
        Mándame fotos de la casa vista desde los cuatro costados para ver si seria posible aislarla por fuera.
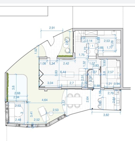
                La casa es lo que está rodeado en blanco, en la parte de atrás si que esta adosada a la del vecino, las otras 3 partes no. Lo rojo unas cuadras que se van a tirar, en esa zona se queda un porche que se cerrara con puerta de acceso principal de la vivienda y unas correderas en pvc.
Adjunto también los planos de cotas con las medidas que se quedarían sin utilizar ningún aislamiento de la planta de arriba y de abajo, la zona azul es lo que daría al exterior y lo naranja lo adosado al vecino.Muchas gracias por su atención.





Entiendo perfectamente las vistas aéreas, pero envías dos planos: uno de ellos que coincide con el perfil de la casa de la foto, y otro que creo se te ha "colado" pues no le veo ninguna relación. Acláramelo.
Para trabajar sobre seguro necesitaría más datos. Tendrás que comprarte un par de "aparatitos". No te asustes: ambos en Amazon te costarán menos de 100 euros.
1 - Una estación metereológica. Con ella sabremos la temperatura y humedad interior de la casa y exterior a las 9 de la mañana, a las 2 de la tarde y a las 11 de la noche durante al menos una semana.
2 - Un termómetro de infrarrojos. Con el podrás decirme la temperatura de la superficie interior de las paredes que dan al exterior (los cuatro costados de la casa), del techo de la planta superior y del suelo de la planta inferior.
Si no lo ves claro, cuando tengas estos aparatos dímelo y te lo explicaré mejor. Es my fácil. Seguro que cuando leas los manuales y juegues un poco con ellos lo entenderás.
Necesitaría también que me dijeses qué temperaturas máximas de día y mínimas de noche tenéis en verano y en invierno. Los datos que tendremos ahora serán muy detallados pero solo de la primavera.
A simple vista, y sin tener aun ningún dato, creo que tu problema no es grave. Lo resolveremos fácilmente. ¿Has pensado en poner algún equipo de climatización? ¿Cómo son las ventanas?
                Lo primero muchas gracias por su atención.
Le comento, la casa son dos plantas. Y entonces mande los planos de la de arriba y la de abajo, luego también de una foto donde va el porche que esa zona se va a cerrar completamente toda y donde están las cuadras sse quedará como jardín. No se si he podio resolver su duda.
Temperaturas en verano en Murcia los días buenos podemos estar en 30 grados, pero es muy común que estemos en 40 grados fácilmente la mayoría de días. En invierno hay mucho contraste ya que durante el día podemos estar entre 17 a 20 grados, pero por la noche baja sobre los 7 o 10 grados, pero es una zona de huerta y es un frío muy húmedo.
Con respecto a las ventanas serían todos de pvc y oscilobatientes excepto la más grande que por medidas me dijeron que no se puede y será corredera. (justo la que sale en la imagen que adjunte).
Y sistemas de climatizacion en principio con la casa correctamente "aislada" íbamos a utilizar un aparato de aire acondicionado por planta.
Voy a echar un vistazo a los aparatos que me ha comentado. Gracias de nuevo
Asumo que un arquitecto ha hecho el proyecto y entiendo ahora que la remodelación no respeta la planta actual. Me pregunto: ¿Qué ha previsto él en cuanto al aislamiento del techo? ¿Se van a respetar las bajantes actuales? ¿Qué hay debajo? ¿Se ven las vigas; hay un cielo raso con una cámara de aire encima? Piensa que es más importante, en cuanto a pérdidas de calor en invierno y entrada del calor exterior en verano, la cubierta que las paredes. Aislar las paredes es muy fácil. No lo es tanto el techo. Me lo tendrás que explicar bien. Lo único que veo en los planos es el perímetro de la casa y su distribución.
Confío en que no creas que me meto en lo que no me importa, pero hiciste la pregunta “Aislamiento en una vivienda unifamiliar” y estoy tratando de ayudarte. Repito, ¿qué ha previsto el arquitecto al respecto en su proyecto? Me sorprendería que no lo hubiese hecho.
Vas bien en cuanto a lo que has previsto para climatización y cerramientos.
Quedo pendiente de los datos e información que te he pedido.
                Hola Francisco, es una casa en la huerta que vamos hacer una reforma integral de la que la nueva distribución se ha encargado una interiorista, no un arquitecto. Ella por problemas de espacio (no porque sea el mejor) nos comentó lo del aislamiento reflexivo que podría ser una buena opción. En una zona de la casa como se ve en los planes que mandé, hay una terraza pero no está unida a la casa, en su día no hicieron escalera para su ir en ella. En la otra zona hay techo con tejas pero desconozco si tiene una cámara de aire. Lo que si le puedo decir es que no hay ni una solo humedad en el techo ni goteras ni filtraciones.
Con respecto a las vigas no se ven, pero nos dijeron que eran de hierro.
Las bajantes se van a respetar en las mismas zonas donde están ahora.
Tengo fotos de todas las estancias de la casa como está actualmente por si crees que es necesario verlas.
Un saludo
Si, mándame las fotos. Lo que quiero ver son los techos. Y recuerda que es fundamental que me des todos los datos sobre temperaturas y RHs que te pedí.
No creo en los aislantes reflexivos. Y, para ser franco, no me tranquiliza que no sea un arquitecto el que se ocupe de una reforma de esta magnitud. Haré lo posible para ayudarte al menos en cuanto al aislamiento térmico.
                Si si, estoy mirando para hacerme con los dos aparatos que me dijo, esta semana los tendré.
Lo del reflexivo nos lo dijo porque es mejor eso que nada y por el espacio.
Lo de las fotos quizás serían muchas para mandarlas por aquí, no se si se las puedo enviar a un correo que tenga usted y mandarle también un video si cree que procede.
Veo que tienes un techo plano, otro a un agua y otro a tres aguas. Mándame una foto del techo visto por debajo de cada uno de los casos. Me refiero solo a la plsnta superior. Solo tres fotos, pues.
                Pero Francisco ahora mismo arriba se ve el techo todo igual, tiene un falso techo de escayola creo que es. Yo te paso las fotos por si acaso.
Por cierto, mañana me dan los dos aparatos que me dijiste.
Por lo que parece en toda la planta superior hay un cielo. Raso de escayola. No me nandes pues las fotos pues nomaclararian nada. Tendríamos que saber que hay detrás. Pero no hagas nada hasta que sepamos los resultados que obtengamos del termómetro de infrarrojos en esas superficies cimparadas con las de las paredes.
                Exactamente, hay un cielo raso de escayola en todo el techo de la casa.
Los aparatos los recibo de hoy y me pongo a ello.
                Según la estación metereologica después de 20minutos puesta(no he podio más tiempo porque me tenia que ir) dentro de la casa hace 16,8° y 53% de humedad, en el exterior marcaba 15,7° y 57% de humedad.
En las paredes exteriores
1:la que está pegada al vecino 13,2 planta de abajo y 14,4 arriba.
2: la que está hacia huerto del vecino 13,2 abajo y arriba varía dependiendo la zona 13,2--14,4 y 15,2.
3.la que da hacia la zona de la piscina la parte de abajo habrá cristalera así que nada y arriba sería 14,8.
4.la otra pared que es donde está bajado la cocina con la escalera que sube y arriba donde empezaría la escalera de caracol sería 15,4 abajo y 16,2 arriba.
Me dado cuenta de que se me ha olvidado tomar temperatura a de techo y suelo. Las mando este fin de semana. Y con respecto a la estación metereologica me resulta imposible mirar las temperatura a las horas que me comentaste, ya que es una casa del pueblo que me pilla retirado y aún no vivo todavía allí.
He de decir que la casa está vacía de muebles y que no se vive en ella y a pesar de las temperaturas no es una casa muy fría.
                Temperatura de techo en zona de terraza 15,4. En el resto del techo 13,8.En el suelo 13,6. También comentar que el termómetro de infrarrojos que he comprado no me inspira mucha confianza ya que en tres horas me ha variado la temperatura de algunas paredes en más de un grado.
                Se me olvidó mandar también las fotos de las humedades que es algo que me preocupa bastante, a ver si este finde las paso. Ya que voy a levantar todo el suelo me gustaría poner también un aislante para intentar que no salgan más, pero todo el mundo me dice que es muy complicado.
El concepto de "aislar el suelo" contra las humedades induce a error. Con "levantar todo el suelo" no conseguirías nada pues la humedad del subsuelo, si la hay, asciende por las paredes y no puedes "levantar" las paredes. Tampoco por lo que hasta ahora me has contado no tienes verdaderamente un problema de "humedades ascendentes". Yo, sinceramente, me olvidaria del tema. Nos concentraremos en aislar convenientemente la casa para que, con un sistema adecuado de acondicionamiento del aire, puedas conseguir un ambiente confortable.
                Francisco te adjunto también las fotos de las humedades que te comenté para saber tu criterio.La más grande está en la pared que esta pegada a la casa del vecino que es la primera imagen.Hay una que si se fija está al lado de un pasillo, esa me preocupa menos porque se va a tirar y ahí no se pondría ninguna.Son todas en la planta de abajo, arriba no hay ninguna humedad ni en techos tampoco.
Ya le enviado todo, me encuentro a la espera de su opinión al respecto.Muchas gracias.




A mi entender estas humedades no tienen solución. Lo único que cabe es “taparlas”. Te recomendaría pues poner un trasdosado de pladur encima cuidando que las planchas no lleguen al suelo ni al techo. Una holgura de 1 cm en ambos bastaría pues se trata de que haya una corriente de aire ascendente que evitar una degradación mayor de estas paredes con el paso del tiempo. Esto no tiene nada que ver con aislar térmicamente las paredes que dan al exterior y el techo de la segunda planta, lo cual trataremos aparte.
Repasando todo lo que hemos conversado y los planos de las dos plantas que que me mandaste veo que la planta superior conservará su superficie actual y que la inferior se amplia mucho. ¿Cómo sera el techo de esta ampliación? ¿La persona que dices te hizo el proyecto y se ocupará de su ejecución te presentó una maqueta o dibujos de la reforma terminada? Me gustaría verlos.
                Negativo Francisco, la planta de abajo tendrá los mismo m2 que la de arriba. Lo único es que al tirar las cuadras la pared que da hacia ellas se queda con una cristalera de 3 puertas correderas y se amplia solo un metro más justo donde van las cristaleras, pero ya está.
Entonces, ¿qué significa el perímetro irregular en el primer plano que aparece abarcando la casa actual?
                Es así la casa, actualmente está así, si te fijas en la vista aérea lo puedes apreciar, el resto son las cuadras es lo que se tira y se queda zona de jardín,pero ampliar no se amplia nada.
O sea que el plano mostrando una ampliación no sirve de nada. Vale. Mejor así pues lo veía muy raro.
                Pues nada Francisco, a la espera me hayo de su opinión, ya pasado mañana empiezo con las obras,comentaré lo del traslado de pladur dejando 1cm tanto arriba como abajo para "solucionar" tema humedades.
                Hola Francisco, después de todo lo que hemos habladi me gustaría saber finalmente su opinión, ya que tengo que avanzar en la obra. Un saludo
                Finalmente no me dijiste nada para el aislamiento térmico de la vivienda, solo para intentar solventar las humedades haciendo un trasdosado de pladur dejando 1cm abajo y arriba y me dijiste que tema aislamiento térmico lo veríamos a parte.
No debes preocuparte por la humedad ambiental pues los RHs que me diste son más que normales. Ten en cuenta que la casa está deshabitada. Con unos buenos equipos de acondicionamento de aire conseguirás un ambiente confortable tanto en verano como en invierno. No veo que conversásemos sobre esto.
Hay que pensar pues en las pérdidas de calor en invierno y la entrada del calor exterior en verano. Lo mejor en tu caso es “aislar por fuera” al menos en cuanto a las paredes que dan al exterior. Una buena solución es cubrirlas por el sistema SATE. Pide presupuesto..
Pero nos quedan los techos de la planta superior. Ahi sí que tienes que tomas medidas drásticas pues la mayor parte de la transmisión térmica, hacia adentro o hacia afuera, vienen por ahi. Hay que tumbar todos los techos de escayola y aislar la cubierta por dentro. Lo que habrá que hacer no lo sabremos hasta que la tengamos a la vista. Será un capítulo del que tendremos que tratar en su momento.
Y tengo que volver al tema de la “reforma integral” que te han propuesto pues tiene poco de profesional. Creo que solo han contado con “maquillar” la casa.
Ya me dirás. Por mi parte sabes que estoy dispuesto a ayudarte.
- Compartir respuesta
 
        - Compartir respuesta
 
Suena a anuncio. No es el sitio adecuado para hacer publicidad. - Prof. Francisco Poveda
        