Instalación de calefacción lo más eficiente posible.
Estoy reformando un piso de unos 110m² y tengo unas dudas en el apartado de la calefacción .
Por cuestión de una discapacidad, necesito mantener la casa en invierno más caldeada de lo que es habitual. Digamos sobre 24 o 25°C. El piso está en Valencia y orientada a Sur la zona del salón.
La idea principal es hacer un circuito bitubular con un termostato situado en el salón que controle la caldera de gas de condensación.
La cuestión es: ¿Se podría encontrar otra manera más eficiente de calentar el piso?.
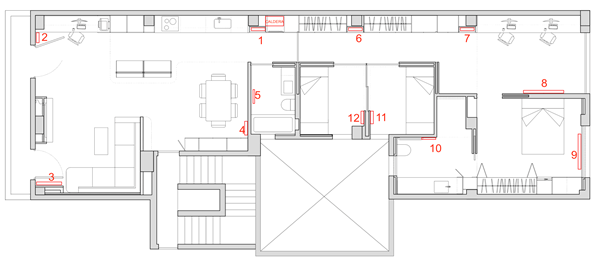
Por ejemplo. La vivienda está dividida claramente en zona de día (radiadores 1 a 5) y zona de noche (radiadores 6 a 12).
¿Se podrían hacer dos circuitos con una sola caldera de manera que unas horas de abriera un circuito y otras horas otro con electroválvulas?.
¿Y hacer dos circuitos cada uno con su caldera controlada cada una por su termostato? ¿Consumiría menos aunque me gastara más en la instalación?.
¿Alguna opción más que no se me haya ocurrido?
