Conectar termostato inalambrico Salus rf300rt a caldera ferroli bluhelix pro 32c
a tod@s.
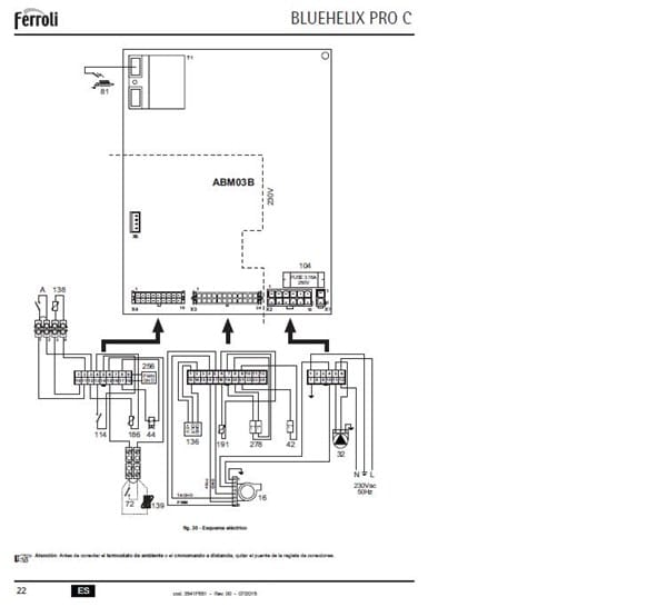
Mi duda es como conectar el receptor salus que es de los sencillos con 2 cables a 220v y 2 para caldera, ya que la caldera tiene unas regletas donde en unas van una manguera de 4 hilos y en otra unos cables rosas y amarillos con un puente, pero tengo miedo de fastidiar la placa.
Pienso que iran donde van la manguera de 4 hilos pero no se como poner el com y el no, ó si se hace asi mando fotos.






2 respuestas
Respuesta de Rody Sat
1
Respuesta de JS BP
1




