MUY URGENTE. Medidas pasillo
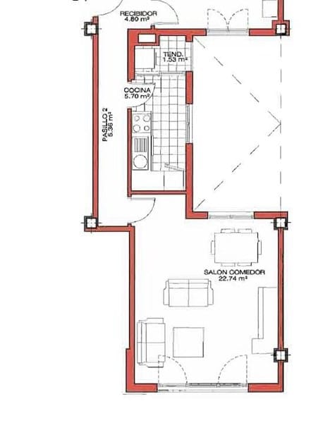
Voy a comprar un piso y tengo muchas dudas sobre si me entraran los muebles en el salón. Tengo un mueble que aunque va por módulos, tiene la tapa de la parte inferior, el centro y la tapa de arriba que mide 3 m x 57 cm. El pasillo que veis mide de ancho 70 cm. ¿Es demasiado estrecho? ¿Me entrará el mueble? Y ¿El sofá? . Estoy hecha un lio. Tengo que decir si me quedo con él ESTE LUNES. El piso es de nueva construcción.

1 respuesta
Respuesta de Estudio de Arquitectura e Ingeniería
1
