A.A. "¿General" solo para una planta de la casa?
Después de 2 años largos de parón han retomado las obras de mi casa y el primer contacto con el albañil ha sido de lo más desalentador. Nos dejaban hacer "cambios" pero a casi todo dicen que no, en algunas cosas he tenido que claudicar, pero este tema me preocupa mucho.
El problema es que aunque en teoría ponen como algo maravilloso que en las casas va preinstalación de aire acondicionado, (sin máquina por supuesto), ahora resulta que solo irá en la planta del medio que es donde están las habitaciones, vamos, que solo disfruto del A.A en 3 habitaciones, ah! Y las rejillas también tienen que salir de mi bolsillo, ni siquiera me ponen eso. Cuando le he preguntado por la planta baja, la respuesta ha sido que si quiero A.A. En el salón, que ponga un split, ¿y la cocina?... Es que vivo en Andalucía y aquí sin aire no hay quien pare que cuando en la calle hay 50º y te metes a cocinar... Es para morirse. Es que aquí abajo el A.A. Es como la calefacción en Rusia, indispensable.
Y la pregunta es: ¿Se puede poner la preinstalación también en la parte baja?. Como además de gastarme en la máquina general tenga que ponerme a comprar split para los otros sitios me voy a arruinar, por no hablar de la factura de la luz y de la de motores que voy a "colgar" por toda la vivienda, me parece algo des caballeado, o lo mismo lo que digo es un disparate, ya me diréis.
El problema es que aunque en teoría ponen como algo maravilloso que en las casas va preinstalación de aire acondicionado, (sin máquina por supuesto), ahora resulta que solo irá en la planta del medio que es donde están las habitaciones, vamos, que solo disfruto del A.A en 3 habitaciones, ah! Y las rejillas también tienen que salir de mi bolsillo, ni siquiera me ponen eso. Cuando le he preguntado por la planta baja, la respuesta ha sido que si quiero A.A. En el salón, que ponga un split, ¿y la cocina?... Es que vivo en Andalucía y aquí sin aire no hay quien pare que cuando en la calle hay 50º y te metes a cocinar... Es para morirse. Es que aquí abajo el A.A. Es como la calefacción en Rusia, indispensable.
Y la pregunta es: ¿Se puede poner la preinstalación también en la parte baja?. Como además de gastarme en la máquina general tenga que ponerme a comprar split para los otros sitios me voy a arruinar, por no hablar de la factura de la luz y de la de motores que voy a "colgar" por toda la vivienda, me parece algo des caballeado, o lo mismo lo que digo es un disparate, ya me diréis.
1 respuesta
Respuesta de tuercas2000
1
1
tuercas2000, Diseño de sistemas de climatización industrial, comercial y domstico
Me quedo algo pasmado porque pongan como algo "maravilloso" la preinstalación de A/A. Por si te interesa, ¿el precio de una preinstalación de aire acondicionado de tipo split mural es del orden de 200?. Esto comparado con el precio de una casa me parece cuando menos, tomadura de pelo. Pero vamos a lo que vamos.
No sé si cuando citas a.a "general", te refieres a una máquina de marca General o de instalación general(de toda la casa). Me inclino por la segunda. Estoy de acuerdo en la necesidad de A/A en Andalucía.
1) Naturalmente que se puede poner una instalación en la planta baja y en la cocina.
2) Puedes poner una instalación de conductos en cada planta y conectarlas entre si con lo que tendrás una sola instalación de aire acondicionado. La diferencia es que la maquina tiene que tener potencia suficiente tanto térmica como de ventilación y para hacer bien la cosa, deberías instalar conpuertas individuales en cada rejilla o rejillas motorizadas. Con esta última medida, conseguirás un impportante ahorro energético e independencia de temperatura en cada estancia.
Instala un solo equipo de aire para toda la casa o uno por planta si no quieres interconectar las plantas. Te saldrá algo más caro pero lo amortizas enseguida porque gastaras menos energía. Si pones un equipo por planta, no quiere decir que necesites una exterior para cada una interior. Puedes instalar una multi con dos evaporadoras y solucionas. En cuanto a el "split" en la cocina, no te lo recomiendo y lo razonaré. En el ambiente de la cocina por muy cuidados@ que seas, siempre va a haber grasa en suspensión en el aire y en el humo así como vapor de agua. Si bien este último no da más problema que la gran condensación, las grasas si, porque se pegan a las aletas de la batería y el primer año va bien, el segundo solo regular y al tercero, la grasa aísla las aletas e impide el intercambio térmico con lo que deja de enfriar y dispara el consumo.
Si decides poner rejilla de conducto en la cocina, cuida mucho que NO pongan rejilla de retorno igual que en los baños ya que por ese retorno distribuiríamos el "olor a tortilla" por toda la casa.
Espero que te sirva de algo, pero como me explico fatal, si tienes dudas házmelo saber y trataré de mejorarlo.
No sé si cuando citas a.a "general", te refieres a una máquina de marca General o de instalación general(de toda la casa). Me inclino por la segunda. Estoy de acuerdo en la necesidad de A/A en Andalucía.
1) Naturalmente que se puede poner una instalación en la planta baja y en la cocina.
2) Puedes poner una instalación de conductos en cada planta y conectarlas entre si con lo que tendrás una sola instalación de aire acondicionado. La diferencia es que la maquina tiene que tener potencia suficiente tanto térmica como de ventilación y para hacer bien la cosa, deberías instalar conpuertas individuales en cada rejilla o rejillas motorizadas. Con esta última medida, conseguirás un impportante ahorro energético e independencia de temperatura en cada estancia.
Instala un solo equipo de aire para toda la casa o uno por planta si no quieres interconectar las plantas. Te saldrá algo más caro pero lo amortizas enseguida porque gastaras menos energía. Si pones un equipo por planta, no quiere decir que necesites una exterior para cada una interior. Puedes instalar una multi con dos evaporadoras y solucionas. En cuanto a el "split" en la cocina, no te lo recomiendo y lo razonaré. En el ambiente de la cocina por muy cuidados@ que seas, siempre va a haber grasa en suspensión en el aire y en el humo así como vapor de agua. Si bien este último no da más problema que la gran condensación, las grasas si, porque se pegan a las aletas de la batería y el primer año va bien, el segundo solo regular y al tercero, la grasa aísla las aletas e impide el intercambio térmico con lo que deja de enfriar y dispara el consumo.
Si decides poner rejilla de conducto en la cocina, cuida mucho que NO pongan rejilla de retorno igual que en los baños ya que por ese retorno distribuiríamos el "olor a tortilla" por toda la casa.
Espero que te sirva de algo, pero como me explico fatal, si tienes dudas házmelo saber y trataré de mejorarlo.
Mil Gracias! Sí, efectivamente era instalación general, y para nada te explicas fatal!, menudo alivio y menuda información detallada, se van a enterar estos, ja, ja, ja. Que mañana tenemos que hablar con uno de los arquitectos y así ya vamos con la lección aprendida para que no nos tomen el pelo.
Vaya cara tienen, nos dicen que el aire solo va en la planta del medio y se quedan tan tranquilos diciendo que split para abajo, pues vaya instalación "general". Una duda, si quiero instalación en la planta baja y me dicen que la casa lleva "instalación general" cuando en realidad solo es en una planta, ¿la instalación esa planta baja la deberíamos de pagar nosotros? O eso en teoría va incluido en lo que se supone "instalación general". Es que vamos, una no sabe de estos temas pero por sentido común, digo yo, que si pongo mínimo 2 split abajo más el aire arriba. Para poner todo eso a la vez para enfriar la casa, que consumo tendríamos y que potencia debíamos contratar, y cuanto me tengo que gastar en aparatos de aire acondicionado, me parece una locura. Y si encima según me dices no es conveniente poner Split en la cocina ya.
Unas dudillas, me recomiendas un equipo por planta, ¿dónde iría ese equipo interior instalado? En los baños. Tengo un baño principal en la planta media y otro pequeñito en la planta baja, ¿podrían ir ahí los equipos?. ¿Y el exterior?, la casa tiene una 3ª planta o planta cubierta como lo definen en el plano, que es un distribuidor y 2 azoteas. En una de las azoteas irán 2 placas solares, (esa es otra no nos quieren poner las placas en el tejado teniendo sitio de sobra), en teoría ahí también iría el equipo exterior del aire. Me niego a perder una terraza a ver como consigo sacar de ahí las placas, ¿se podría poner el aparato exterior también sobre el tejado?, muy estético no va a quedar pero como la otra terraza la quiero cerrar para hacerme un cuarto de lavado y plancha, tal vez pudiese ponerlo todo encima de ese tejado ya que queda bastante escondida esa zona.
Muchas gracias y un saludo.
Vaya cara tienen, nos dicen que el aire solo va en la planta del medio y se quedan tan tranquilos diciendo que split para abajo, pues vaya instalación "general". Una duda, si quiero instalación en la planta baja y me dicen que la casa lleva "instalación general" cuando en realidad solo es en una planta, ¿la instalación esa planta baja la deberíamos de pagar nosotros? O eso en teoría va incluido en lo que se supone "instalación general". Es que vamos, una no sabe de estos temas pero por sentido común, digo yo, que si pongo mínimo 2 split abajo más el aire arriba. Para poner todo eso a la vez para enfriar la casa, que consumo tendríamos y que potencia debíamos contratar, y cuanto me tengo que gastar en aparatos de aire acondicionado, me parece una locura. Y si encima según me dices no es conveniente poner Split en la cocina ya.
Unas dudillas, me recomiendas un equipo por planta, ¿dónde iría ese equipo interior instalado? En los baños. Tengo un baño principal en la planta media y otro pequeñito en la planta baja, ¿podrían ir ahí los equipos?. ¿Y el exterior?, la casa tiene una 3ª planta o planta cubierta como lo definen en el plano, que es un distribuidor y 2 azoteas. En una de las azoteas irán 2 placas solares, (esa es otra no nos quieren poner las placas en el tejado teniendo sitio de sobra), en teoría ahí también iría el equipo exterior del aire. Me niego a perder una terraza a ver como consigo sacar de ahí las placas, ¿se podría poner el aparato exterior también sobre el tejado?, muy estético no va a quedar pero como la otra terraza la quiero cerrar para hacerme un cuarto de lavado y plancha, tal vez pudiese ponerlo todo encima de ese tejado ya que queda bastante escondida esa zona.
Muchas gracias y un saludo.
En tu comunicado aludes, en relación a si es instalación general o no, a que es cosa de sentido común. Creo que se te pasa por alto que "el sentido común es el menos común de los sentidos". Bromas aparte, Cuando una instalación doméstica se define como "general", dejando a un lado las cuestiones semánticas (el idioma español lo deja muy clarito en el diccionrio de la RAE) se entiende que es en toda la superficie construida y permitida por la reglamentación ( en este caso el Reglamento de Instalaciones Térmicas en Edificios RITE). Aun más, si nos vamos a estadística, un gran porcentaje de instalaciones no generales son para los salones y dormitorio principal de la casa. No sé a que viene el planificar una vivienda con clima y dejar sin tratar el salón que es don de más vida social se hace de día que es cuando más carga térmica hay. En cuanto a la cocina, Hay un pequeño vacío de reglamentación y hay quien lo pone y quien no. Desde luego en Andalucía es bastante diferente a mi tierra Galicia sobretodo en la costa. Caso aparte e Ourense con sus máximas de 45º muchos días de verano. Con respecto al consumo total, no pienses que todo se enciende a la vez, y aun así, el consumo puntual de una maquina para todo es poco mayor que varias parciales. Otra cosa es el consumo final que cuanto más parcializado sea, más ahorro de energía.
En el capítulo de ubicación de las interiores, si puedes utilizar los sobretechos de los baños pero es posible que tengan que ser más bajos de lo normal (ignoro las cotas de altura y me tiro a la piscina). Te recomiendo que le pidas al instalador que deje suficiente espacio par limpieza y servicio de mantenimiento. También te recomendaría que en los cuartos donde estén las evaporadoras instales techo móvil en vez de fijo. Te evitará antiestéticas trampillas de acceso y líos a la hora del mantenimiento.
El tema de emplazamiento de la o las condensadoras es más delicado. Si lo pones en el tejado, va a tener una insolación muy alta. La chapa puede llegar a 60ºC de temperatura y la condensación sería mínima o nula y por lo tanto el rendimiento sería bajísimo y el consumo se dispara con curva exponencial. Yo te recomiendo una zona sombría ya sea terraza. Pared Norte, Este o Noreste. La puedes poner en el suelo o si tienes garaje, puedes ponerlo por dentro con salida directa al exterior con una rejilla de bajo coeficiente Y y de tamaño adecuado. Existe en el mercado unos equipos de marca GENERAL que distribuye Eurofred, que son de unos 15,2Kw (13100 Fr/h) de potencia de sistema VRF que te recomiendo. La maquina exterior mide 900x900x370 mm (AxHxF) con un consumo máximo atota potencia de arranque de 4,78 Kw. Su rango de trabajo en el exterior es: Refrigeración -5 a +43ºC y calefacción -20º a +21ºC. Con este tipo de maquina, puedes conectarle hasta 8 equipos interiores. Lo mismo lo hay en otras marcas de calidad pero esta es la única con un solo ventilador y de 90cmde altura.
En cuanto a las placas solares, insiste en que las pongan en tejado. Si consigues una orientación sur a 30º de inclinación, el rendimiento será estupendo. En una trerraza siempre tendrás unas horas de sombra en las que perderás rendimiento y por lo tanto tendrás que apoyar con caldera, y eso pasa por taquilla.
Animo y no te dejes que tu tienes razón que se puede documentar.
En el capítulo de ubicación de las interiores, si puedes utilizar los sobretechos de los baños pero es posible que tengan que ser más bajos de lo normal (ignoro las cotas de altura y me tiro a la piscina). Te recomiendo que le pidas al instalador que deje suficiente espacio par limpieza y servicio de mantenimiento. También te recomendaría que en los cuartos donde estén las evaporadoras instales techo móvil en vez de fijo. Te evitará antiestéticas trampillas de acceso y líos a la hora del mantenimiento.
El tema de emplazamiento de la o las condensadoras es más delicado. Si lo pones en el tejado, va a tener una insolación muy alta. La chapa puede llegar a 60ºC de temperatura y la condensación sería mínima o nula y por lo tanto el rendimiento sería bajísimo y el consumo se dispara con curva exponencial. Yo te recomiendo una zona sombría ya sea terraza. Pared Norte, Este o Noreste. La puedes poner en el suelo o si tienes garaje, puedes ponerlo por dentro con salida directa al exterior con una rejilla de bajo coeficiente Y y de tamaño adecuado. Existe en el mercado unos equipos de marca GENERAL que distribuye Eurofred, que son de unos 15,2Kw (13100 Fr/h) de potencia de sistema VRF que te recomiendo. La maquina exterior mide 900x900x370 mm (AxHxF) con un consumo máximo atota potencia de arranque de 4,78 Kw. Su rango de trabajo en el exterior es: Refrigeración -5 a +43ºC y calefacción -20º a +21ºC. Con este tipo de maquina, puedes conectarle hasta 8 equipos interiores. Lo mismo lo hay en otras marcas de calidad pero esta es la única con un solo ventilador y de 90cmde altura.
En cuanto a las placas solares, insiste en que las pongan en tejado. Si consigues una orientación sur a 30º de inclinación, el rendimiento será estupendo. En una trerraza siempre tendrás unas horas de sombra en las que perderás rendimiento y por lo tanto tendrás que apoyar con caldera, y eso pasa por taquilla.
Animo y no te dejes que tu tienes razón que se puede documentar.
Guauuuu! o.O ja, ja, ja, en la próxima reunión me aprendo todo esto de memorieta y se lo suelto así sin anestesia para que no me repliquen.
Ayer no puede ir a hablar con el arquitecto técnico, fue mi marido solo. Accedieron a poner la instalación en la planta baja, será sin comunicarla con la de la planta superior, así que tendremos que poner un equipo interior por planta y en principio no hay problema con ponerlo en los falsos techos de los baños.
Hasta aquí más o menos bien, ¿el problema es que nos piden por materiales y mano de obra en torno a 1.000?, me quedé muerta. Si lo queremos "gratis" tiene que ser como ellos lo ponen, preinstalación general en planta alta y preinstalación para un Split en el salón.
Volvemos a lo del sentido común, que efectivamente como bien dijiste "escasea", no lo entiendo, no sé de estos menesteres pero veo muy ridícula la preinstalación que ellos ponen, tú me dirás que sabes a la perfección como va esto.
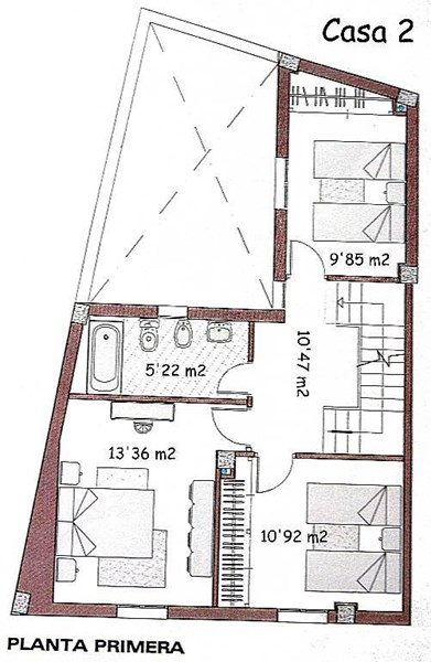
Te pongo los planos que tenemos y las medidas:
Superficie total construida: 139' 95 m2. Superficie construida en planta baja: 61'84 m2. Superficie construida en planta alta: 61'84 m2. Superficie construida en planta cubierta: 12'96 m2.
planta baja
En la planta baja pedimos salida de aire en salón, incluso dudábamos en si por los metros de este fuese necesario una segunda salida. Salida en la cocina, y como daba la sensación de que la zona de la entrada y del baño se iban a quedar demasiado alejadas y apenas les iba a llegar refrigeración dijimos de poner una rejilla también a la altura del baño o en la entrada, en casa de mis padres 150 m2 útiles tienen 2 salidas en el salón, 1 en cuartos, cocina y en la entrada, así que más o menos me guié por eso.
Es que poner solo preinstalación para un Split en el salón me parece una porquería para los metros de la planta y las estancias que hay en ella, y más cuando le daban tanto bombo y platillo a lo de la "preinstalación".
planta alta
planta cubierta.
En esta planta también nos cuestionamos lo de si sería necesario poner aire también, supongo que no porque vida allí no haremos, el problema que le veía es que por ahí nos entrará un calor importante.
Como veo que controlas de todo te comento el "problemilla" de las placas, que dicen que en el tejado, naranjas de la china, que por ley está prohibido poner ahora las placas en el tejado.. A cuadros me quedé porque medio pueblo está así y también las he visto en la publicidad de empresas instaladoras, incluso he visto unas que se camuflan de maravilla, pero eso ya lo veremos, ya.. Además para 3 habitaciones según ellos son necesarias 2 placas de 1'50 m2, (según pone en el plano), y cada una de ellas con un acumulador.
La idea era poner las placas sobre el tejado grandote que se ve en el plano, aunque creo que no tiene buena orientación, donde irían estupendamente es en el tejado de terminar las escaleras, que es la zona más elevada de toda la casa, es más, no hay cerca ninguna otra edificación. Es un tejado a 4 aguas, (creo que se dice así). Volvemos a lo del desconocimiento sobre estos temas pero creo que es un sitio magnifico para poner las placas y así no estropear ese pedazo de azotea, pero no hay forma de convencerlos.
Para el tema del aparato exterior del aire en principio quería ponerlo en el rectángulo ese tonto que hay en la azotea de las placas, peeeroooo. Cuando fui a ver la obra, sorpresa! Por cuestiones estéticas según ellos, lo han tapado, han subido el tejado hasta la pared y adiós al hueco. Teníamos pensado investigar si aquello estaba hueco para abrirlo y ponerle una puerta para así usarlo como zona de almacenaje, ¿pero podría poner ahí "tapadito" el aparato exterior? El hueco es bastante amplio, en caso de estar libre claro. Lo que supongo tal vez será un problema es la escasa ventilación, ¿no?.
Otro sitio tal vez para ponerlo sería en la otra azotea la cual la quiero techar para aprovecharla bien y sacarme una habitación extra. El tejado que te comenté antes de 4 aguas sobresale y si lo "pego" a la pared de la puerta solamente le daría el sol a primeras horas de la mañana pero el resto del día estaría en sombra.
Perdona por ser tan pesada, pero es que vaya maravilla, que tengo un mosqueo tremendo porque no me fio de ellos ni un pelo, ya nos han demostrado que son gente de poco fiar, y no estoy dispuesta a más tonterías. Después de 3 años de retraso ahora vienen con unas prisas tremendas y cada vez que intentamos dejar la cosa lo mejor posible es subir el precio. Aunque sea poco MIL MILLONES DE GRACIAS! Un saludo.
Ayer no puede ir a hablar con el arquitecto técnico, fue mi marido solo. Accedieron a poner la instalación en la planta baja, será sin comunicarla con la de la planta superior, así que tendremos que poner un equipo interior por planta y en principio no hay problema con ponerlo en los falsos techos de los baños.
Hasta aquí más o menos bien, ¿el problema es que nos piden por materiales y mano de obra en torno a 1.000?, me quedé muerta. Si lo queremos "gratis" tiene que ser como ellos lo ponen, preinstalación general en planta alta y preinstalación para un Split en el salón.
Volvemos a lo del sentido común, que efectivamente como bien dijiste "escasea", no lo entiendo, no sé de estos menesteres pero veo muy ridícula la preinstalación que ellos ponen, tú me dirás que sabes a la perfección como va esto.
Te pongo los planos que tenemos y las medidas:
Superficie total construida: 139' 95 m2. Superficie construida en planta baja: 61'84 m2. Superficie construida en planta alta: 61'84 m2. Superficie construida en planta cubierta: 12'96 m2.
planta bajaEn la planta baja pedimos salida de aire en salón, incluso dudábamos en si por los metros de este fuese necesario una segunda salida. Salida en la cocina, y como daba la sensación de que la zona de la entrada y del baño se iban a quedar demasiado alejadas y apenas les iba a llegar refrigeración dijimos de poner una rejilla también a la altura del baño o en la entrada, en casa de mis padres 150 m2 útiles tienen 2 salidas en el salón, 1 en cuartos, cocina y en la entrada, así que más o menos me guié por eso.
Es que poner solo preinstalación para un Split en el salón me parece una porquería para los metros de la planta y las estancias que hay en ella, y más cuando le daban tanto bombo y platillo a lo de la "preinstalación".
planta alta
planta cubierta.En esta planta también nos cuestionamos lo de si sería necesario poner aire también, supongo que no porque vida allí no haremos, el problema que le veía es que por ahí nos entrará un calor importante.
Como veo que controlas de todo te comento el "problemilla" de las placas, que dicen que en el tejado, naranjas de la china, que por ley está prohibido poner ahora las placas en el tejado.. A cuadros me quedé porque medio pueblo está así y también las he visto en la publicidad de empresas instaladoras, incluso he visto unas que se camuflan de maravilla, pero eso ya lo veremos, ya.. Además para 3 habitaciones según ellos son necesarias 2 placas de 1'50 m2, (según pone en el plano), y cada una de ellas con un acumulador.
La idea era poner las placas sobre el tejado grandote que se ve en el plano, aunque creo que no tiene buena orientación, donde irían estupendamente es en el tejado de terminar las escaleras, que es la zona más elevada de toda la casa, es más, no hay cerca ninguna otra edificación. Es un tejado a 4 aguas, (creo que se dice así). Volvemos a lo del desconocimiento sobre estos temas pero creo que es un sitio magnifico para poner las placas y así no estropear ese pedazo de azotea, pero no hay forma de convencerlos.
Para el tema del aparato exterior del aire en principio quería ponerlo en el rectángulo ese tonto que hay en la azotea de las placas, peeeroooo. Cuando fui a ver la obra, sorpresa! Por cuestiones estéticas según ellos, lo han tapado, han subido el tejado hasta la pared y adiós al hueco. Teníamos pensado investigar si aquello estaba hueco para abrirlo y ponerle una puerta para así usarlo como zona de almacenaje, ¿pero podría poner ahí "tapadito" el aparato exterior? El hueco es bastante amplio, en caso de estar libre claro. Lo que supongo tal vez será un problema es la escasa ventilación, ¿no?.
Otro sitio tal vez para ponerlo sería en la otra azotea la cual la quiero techar para aprovecharla bien y sacarme una habitación extra. El tejado que te comenté antes de 4 aguas sobresale y si lo "pego" a la pared de la puerta solamente le daría el sol a primeras horas de la mañana pero el resto del día estaría en sombra.
Perdona por ser tan pesada, pero es que vaya maravilla, que tengo un mosqueo tremendo porque no me fio de ellos ni un pelo, ya nos han demostrado que son gente de poco fiar, y no estoy dispuesta a más tonterías. Después de 3 años de retraso ahora vienen con unas prisas tremendas y cada vez que intentamos dejar la cosa lo mejor posible es subir el precio. Aunque sea poco MIL MILLONES DE GRACIAS! Un saludo.
Tengo problemas de código para abrir esos enlaces de las imágenes. Podrías enviármelos al e-mail: [email protected] Quiero verlas y después te comento alguna cosilla.
Ha pasado un fin de semana y he intentado averiguar lo de la prohibición de poner placas solares térmicas en los tajados. Lo único que he encontrado es una prohibición de algunos ayuntamientos como el de Toledo en el que se phoibe instalar con su norma numero 30 del PGOM la prohibición de placas solares FOTOVOLTAICAS por entender que esto es darle un uso industrial a suelo urbano (cogérsela con papel de fumar para más adelante sacudir un impuesto). En tu caso se trata de palacas solares térmicas que no solo no están prohibidas, si no que es obligatoria su instalación por en CTE (nuevo Código Técnico de Edificación) en un porcentaje que viene determinado en el CTE en la norma DB-HE4 en las tabla de apartado 2.1 y2.2 que es un mínimo de 30% según zona climática. En cuanto a la ubicación, te recomiendo que te informes también en el CTE DB. HE4 apartado 3.3.2.3 sobre la normativa de soportes. Insiste en tejado. Es más eficaz y no estorba. Existen placas a ras de teja que casi ni se ven. En cuanto a acumuladores, solo es necesario un acumulador para toda la instalación solar.
En cuanto a la ubicación de la exterior, te repito que existen máquinas interiores con ventilación forzada. Puedes también usar una exterior metiéndola en una espacie de zulo siempre y cuando la salida del ventilador sea directa a la calle (rejilla pegada al ventilador) y tenga una entrada de aire exterior cercana y de dimensiones como la salida por lo menos.
Tema preinstalación. Hemos topado con el "estudiado" de turno que pretende llevar al huerto al personal y encima quedarse él con los tomates. Pues no. La preinstalación de un sistema split, ¿puede salirle al constructor por 200? Si solo contrata una pero si contrata una urbanización, el precio cae bastante. Si la preinstalación contratada es "general", tendrán que hacer preinstalación para toda la vivienda como comentaba en otro comunicado y su obligación es poner una preinstalación lpara cada estancia. Podrían hacerlo con splits murales o dsi lo hacen por conductos, tendrán que poner salida de conducto y rejillas debidamenta calculadas para cada estancia salón incluido, claro. El número de rejillas en salón depende de la geometría de este y las capacidades utilizadas y esto sin ver planos con cotas y orientaciones geográficas, no me atrevo a decir nada. El precio me parece abusivo. ¿Creo qué deberías pedir presupuesto a un instalador de A/C de conductos o a algún conductero pero si calculamos que la instalación de una planta lleva en conducto de ida del orden de 15 m2 y pones a 25? ¿M2 viene a salir 375?. Si sumamos 150 de instalación de tubos y maniobra eléctrica, ¿nos ponemos en 525? Y ya me pongo en plan caro porque el retorno lo hacen por plenum en el pasillo.
Espero aclararte algo. No te dejes que están tratando de colarte un gol.
En cuanto a la ubicación de la exterior, te repito que existen máquinas interiores con ventilación forzada. Puedes también usar una exterior metiéndola en una espacie de zulo siempre y cuando la salida del ventilador sea directa a la calle (rejilla pegada al ventilador) y tenga una entrada de aire exterior cercana y de dimensiones como la salida por lo menos.
Tema preinstalación. Hemos topado con el "estudiado" de turno que pretende llevar al huerto al personal y encima quedarse él con los tomates. Pues no. La preinstalación de un sistema split, ¿puede salirle al constructor por 200? Si solo contrata una pero si contrata una urbanización, el precio cae bastante. Si la preinstalación contratada es "general", tendrán que hacer preinstalación para toda la vivienda como comentaba en otro comunicado y su obligación es poner una preinstalación lpara cada estancia. Podrían hacerlo con splits murales o dsi lo hacen por conductos, tendrán que poner salida de conducto y rejillas debidamenta calculadas para cada estancia salón incluido, claro. El número de rejillas en salón depende de la geometría de este y las capacidades utilizadas y esto sin ver planos con cotas y orientaciones geográficas, no me atrevo a decir nada. El precio me parece abusivo. ¿Creo qué deberías pedir presupuesto a un instalador de A/C de conductos o a algún conductero pero si calculamos que la instalación de una planta lleva en conducto de ida del orden de 15 m2 y pones a 25? ¿M2 viene a salir 375?. Si sumamos 150 de instalación de tubos y maniobra eléctrica, ¿nos ponemos en 525? Y ya me pongo en plan caro porque el retorno lo hacen por plenum en el pasillo.
Espero aclararte algo. No te dejes que están tratando de colarte un gol.
Hola, perdona por la tardanza pero he tenido una gripe de caballo.
Ya te he enviado lo que me pediste.
Buf! Lo que me temía, nos tienen que pagar por retraso en la obra bastante dinero y con la excusa de que las "modificaciones" nos iban a costar, nos están quieron sacar todo lo posible para así no tenernos que pagar tanto. Como se vuelven a pasar y no se están portando bien supongo que tendremos que ponerlo en conocimiento de nuestra abogada.
Esta tarde ha estado hablando mi marido con los fontaneros y parece ser que las placas han escogido las más baratas. Lo de ponerlas en el tejado, donde vivimos no hay ningún inconveniente, así que no sé de dónde se han sacado lo de que está prohibido. De todas formas le ha dicho que se pueden cambiar de ubicación sin problema Iremos a hablar con el arquitecto del municipio para sacarnos de dudas.
De nuevo muchísimas gracias, al final nuestras sospechas han sido confirmadas y no solo estaremos alerta con estos temas, pues visto lo visto nos la están intentando jugar en todo. Un saludo.
Ya te he enviado lo que me pediste.
Buf! Lo que me temía, nos tienen que pagar por retraso en la obra bastante dinero y con la excusa de que las "modificaciones" nos iban a costar, nos están quieron sacar todo lo posible para así no tenernos que pagar tanto. Como se vuelven a pasar y no se están portando bien supongo que tendremos que ponerlo en conocimiento de nuestra abogada.
Esta tarde ha estado hablando mi marido con los fontaneros y parece ser que las placas han escogido las más baratas. Lo de ponerlas en el tejado, donde vivimos no hay ningún inconveniente, así que no sé de dónde se han sacado lo de que está prohibido. De todas formas le ha dicho que se pueden cambiar de ubicación sin problema Iremos a hablar con el arquitecto del municipio para sacarnos de dudas.
De nuevo muchísimas gracias, al final nuestras sospechas han sido confirmadas y no solo estaremos alerta con estos temas, pues visto lo visto nos la están intentando jugar en todo. Un saludo.
Mcon los planos que me envías, me he hecho un cálculo de potencias y de conductos de distribución. En cuanto a las placas solares, están puestas justo a revés de lo adecuado. Están orientadas al norte cuando lo indicado es el sur. Puedes ponerlas en otra dirección con lo que perderían rendimiento pero en ningún caso al norte. Como comentábamos en otro comunicado, se pueden poner las máquinas interiores en los baños de arriba y abajo. En el salón yo ppondría dos difusores redondos (un encima de la mesa comedor y otro a media distancia entre este y la pared de la ventana. En la cocina uno en el centro. Dentro del conducto de la cocina se debería instalar un interruptor de flujo que encendiese unn extractor automáticamente cada vez que arranque el aire hacia la cocina. Con esta medida te aseguras de no generar sobrepresión en la cocina que forzaría al aire a retornar por el pasillo (olor a tortilla general). En el centro del pasillo distribuidor y a la altura de la escalera, otro difusor. Todos los difusores estarán equilibrados en presión.
En la planta de arriba se pondría en el d-1, d-2, d-3, una rejilla encima del dintel de la puerta. Los retornos debería hacerlos el conductero al ver la obra y apoyándose en su experiencia pero teniendo en cuenta que por las rejillas sale también sonido y en los dormitorios se agradece discreción (se puede utilizar Climaver Velo). La máquina exterior, como ya te comenté, es bueno que no le de mucho sol en verano pero que en invierno no vea mucho norte.
Como sugerencia: Podrías hacer acuerdo con la constructora para que te descuente la instalación y encargarla tu a un instalador profesional de esa localidad (que por cierto no sé cual es y he supuesto que es de zona climática 1).
En la planta de arriba se pondría en el d-1, d-2, d-3, una rejilla encima del dintel de la puerta. Los retornos debería hacerlos el conductero al ver la obra y apoyándose en su experiencia pero teniendo en cuenta que por las rejillas sale también sonido y en los dormitorios se agradece discreción (se puede utilizar Climaver Velo). La máquina exterior, como ya te comenté, es bueno que no le de mucho sol en verano pero que en invierno no vea mucho norte.
Como sugerencia: Podrías hacer acuerdo con la constructora para que te descuente la instalación y encargarla tu a un instalador profesional de esa localidad (que por cierto no sé cual es y he supuesto que es de zona climática 1).
- Compartir respuesta
- Anónimo
ahora mismo