No sé cómo amueblar habitación de invitados/despacho
Tengo una habitación que quiero usar como habitación de invitados y despacho, también quiero poner un armario ya que que necesito espacio para ropa.
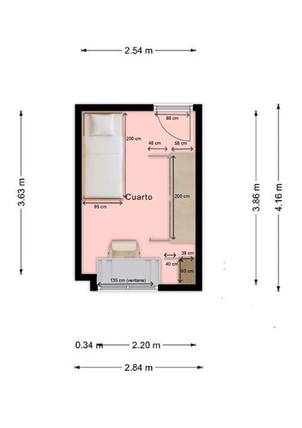
La habitación tendría una cama nido, un armario, un escritorio (quiero poner la mesa más grande que pueda caber sin que esté todo abarrotado), una estantería (es la que está en la esquina) y, si se puede, algo para almacenar cosas varias.
He pensado amueblarla como viene en el plano porque no se me ocurre una forma mejor (en principio, he pensado poner el escritorio en la ventana por la luz).
Mi pregunta principal es:
¿Quedaría y cabría bien el armario (de puertas abatibles) en el sitio en el que lo he puesto?
Si no, ¿se os ocurre otra forma de colocarlo? ¿O de colocar el resto de muebles?
Adjunto la imagen del plano con medidas y la forma y medidas del armario
(La línea grisácea que tiene la estantería es porque también tiene puertas abatibles)
Muchas gracias!




