Diseño de habitación principal modificando situación de armario

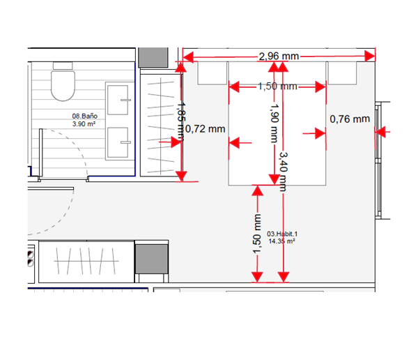
En un piso nuevo en construcción tengo que decidir donde colocan un armario en el dormitorio principal. En la opción 1 en la pared del lado izquierdo de la cama, con una cama de 1,50 sólo quedaría a cada lado de la cama unos 70 cm. Además el armario es de hojas de 60 cm, por lo que si se coloca mesilla en el lado izquierdo no se puede abrir una de las puertas. Con esta distribución a los pies de la cama quedaría aproximadamente 1,5 metros.

Tengo la opción de mover ese módulo del lado izquierdo a los pies de la cama, pero al ser el mismo módulo la pared que está a los pies de la cama no quedaría cubierta, quedando 1,5 metros de pared sin nada. Al desplazar el armario con una cama de 1,5 metros se podría dejar 1 metro a cada lado de la cama, y entre los pies de la cama y el armario quedaría unos 80 cm.

Agradecería que me comentaseis cual crees que es la mejor opción para el día a día, si compensa la estética por ganar un poco más de espacio a los lados de la cama. No abrir una de las hojas del armario no sería un gran problema, ya que lo dedicaría a ropa de poco uso.

Gracias por vuestra aportación

5 Respuestas

Respuesta

Si está buscando una base de cama ajustable, estos modelos brindan la capacidad de plegarse para guardarlos cuando no se usan durante el día. Este modelo en particular está diseñado teniendo en cuenta su conveniencia, por lo que no tiene que preocuparse por tener que hacer demasiados ajustes diferentes al cambiar su disposición para dormir durante la noche.

Respuesta
1

La segunda, o sea a los pies de la cama.

Respuesta
1

Mi opción, poner el cabecero de la cama enfrente y hacer un armario empotrado en la pared de 3.05 m incluyendo el pilar (todo lo ancho de pared a pared). ¡De lujo!

Es una buena idea, pero por desgracia la constructora solo me deja una de las dos opciones indicadas. Muchas gracias por tu aportación!! 

Respuesta
1

A los pies de la cama. La segunda opción. Siempre podrás colocar una cómoda con cajones en el lado de la cama si lo deseas y seguir teniendo espacio.

Pero piensa bien qué te conviene más: si la estética de una habitación amplia o la practicidad.

¡Gracias! Carmen por la aportación. Me inclino más por la practicidad, aunque también dudaba de ponerlo a los pies de la cama por si quedaba muy rara la habitación. Saludos

Respuesta

Valora la posibilidad de utilizar un canapé abatible para que puedas sustituir el armario por uno más pequeño y así ganar más espacio. De esta forma puedes tener lo mejor de las dos opciones que planteas y ganas tanto en diseño como en funcionalidad, además de tener una habitación aparentemente más grande porque vuelves útil un espacio que de otro modo no utilizarías.

Añade tu respuesta

Haz clic para o

Más respuestas relacionadas