Problema con presión de agua en cañerías nuevas
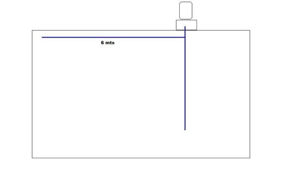
Les cuento, tengo la cañerías nuevas en termofusión de 3/4 de la bajada del tanque, en el baño anda perfecto el tema es en la cocina y el termo que me llega un chorrito... O puede que me falte presión, que tenga alguna obstrucción de que haya pegado mal algún caño (estoy al horno) o que tenga muchas vueltas (al horno con papas)... Lo cual dudo de todas y no quiero hacer macana o sea lo que pegue en el baño no tuve ningún problema de presión ni de obstrucción... ¿si fuera problema de presión supongo que con una bomba lo podría solucionar pero hay algún método de comprobar sin hay obstrucción sin romper? Porque tengo todo pintado y colocado los cerámicos... ¿pero we que me dicen? Ahí le mando un dibujo como es el recorrido ...
PRIMERA FOTO: vista del tanque con el recorrido del caño que va por el exterior de la pared es decir pegado a esta agarrado con unos ganchitos porque es el patio del vecino. El que baja es el que va al baño y el que va a la izquierda va para el comedor.



