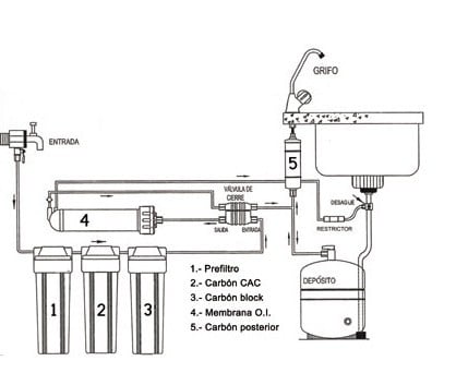
Osmosis, problemas con las conexiones al cambiar los filtros.
Tengo un problema con las conexiones de mi aparato de osmosis, he cambiado los filtros con tan mala suerte que mientras lo hacía recibí una llamada que tuve que atender y en el descuido perdí la forma de conectar los filtros y ahora no se como iban las conexiones a la válvula de 4 vias y desconozco si los he conectado correctamente (debe ser que no porque no sale el agua jejeje..) antes de hacerlo mal me gustaria qeu me echasen una mano por aqui. Gracias de antemano. Un saludo. Envio fotos .

Respuesta de Aguajome -Selu-
1


