No sé qué combi integrable puedo poner en mi cocina
Tenemos un frigorífico integrable ARISTON OK RF 3100 y lo tenemos que cambiar porque ya tiene 20 años y empieza a fallar pero me encuentro con la problemática de que los frigoríficos que me interesan no parecen encajar con las puertas de mi mueble. Llamo a las marcas para preguntar si me pueden decir si sus modelos podrían instalarse con mis puertas pero me dicen que eso lo tengo que hablar con un mueblista. ¿Un mueblista puede hacerme unas puertas nuevas IGUALES a medida del nuevo frigorífico? El mueble es muy muy antiguo y dudo que se pueda hacer igual. ¿Hay algún frigorífico que pueda encajar exacto con las medidas del mio? Me estoy volviendo loco y no se qué hacer. ¿Qué se suele hacer en estos casos? Gracias
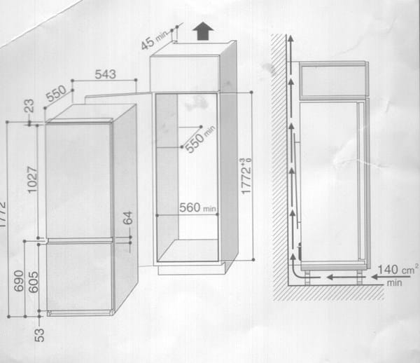
Adjunto las medidas de mi actual frigorífico por si alguien puede decirme algún modelo de combi que pueda encajar con mis puertas.
La de arriba mide 1096mm de alto y la de abajo 698mm

