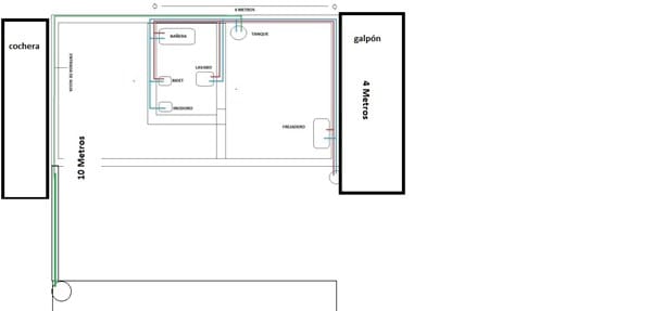
¿Qué artículos de termofusión necesito para instalar el agua en mi casa?

Hola es mi primera ves la idea es la llegada al tanque y el caño al termo-tanque de 1 pulgada, ¿estoy viendo si la entrada a la casa por lo menos asta la mitad después lo paso a 3/4 porque tengo ladrillo hueco de 8 cm de ancho lo cual se complica para pasar caliente y fría je je todo lo demás de 3/4 que les parece? Y quería saber que artículos de termofusión voy a necesitar para la casa... Mi dudas es más que nada en las terminaciones de los aparatos.

1 respuesta
Respuesta de gabygallego
1



