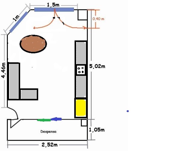
Distribución cocina con ventanas muy bajas
Hemos comprado una casa y tenemos que montar la cocina... Y al medir nos damos cuenta que las ventanas tienen una altura de 88 cm del suelo, super bajas! Entonces nos limita mucho al poner los muebles.
Hemos picado todo y podemos poner las instalaciones donde mejor nos venga, ya que no hay azulejos todavía... Pero no tenemos ni idea de como hacer la distribución de la cocina.
La altura del techo es de 2,70 aunque pensamos en la posibilidad de poner falso techo, con lo que bajaría a 2,50 como mucho.
Nos gustaría frigorífico side by side, y podemos prescindir de la despensa si fuera necesario. Una idea de las pocas que tengo es que se podrían abrir puertas correderas en el frontal de la despensa y si el frigorífico no puede ir fuera, meterlo dentro de la depensa.
A ver si nos podéis echar un cable, por favor.
Muchas gracias! Un saludo



