Circuito de calefacción con monocapa
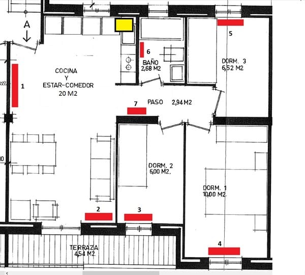
Voy a poner la calefacción en mi casa y quería saber si me podéis ayudar para calcular las secciones de las tuberías y el recorrido de las mismas para ser lo más eficiente posible. Adjunto el plano de la casa con los radiadores y la caldera marcados.
Es un salón unido a la cocina de 20m2 que da al oeste, 2 habitaciones también al oeste de 6 y 10 m2. Otra habitación que da al patio de 6,52m2, un baño que da al patio de 2,68m2 y un pasillito de 2,94m2

.
He marcado en rojo los radiadores que creo que hay que poner (en baño es toallero) y el número de orden del circuito que veo más lógico pero si veis que no está bien me decís. En amarillo he marcado la posición de la caldera. Los tubos van a ir todos por el suelo y van a ser en multicapa.
1 respuesta
Respuesta de Gas ciudad Jaen
