Conectar termostato caldera Quemoil Inso 20
Tengo una caldera Quemoil Inso 20 y estoy intentando saber como conectar el termostato ambiente. Me han dicho que es en un cable rojo que esta enrollado pero no entiendo como conectarlo. Según mi intuición pienso que sería cortando ese cable rojo y cada extremo del corte pelarlo y añadirlo a una regleta. Los dos cables del termostato habrá que ponerlos al otro extremo de la regleta. No se si estoy en lo correcto.
Voy a comprar un cronotermostato inalámbrico para no tener que pasar cables.
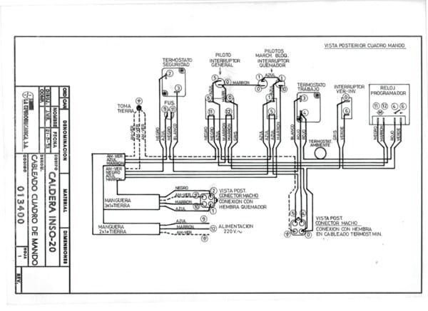
Os dejo el esequema eléctrico de la caldera y un par de fotos de mi caldera para que veáis los cables. Apunto que solo es para calefacción no tiene agua caliente.
Gracias de antemano y un saludo.


1 respuesta
Respuesta de Gas ciudad Jaen
2