Ventilación primaria y desagüe en local comercial
He leído en algunas páginas y foros que no es necesario dotar de ventilación primaria a los aparatos sanitarios de una planta baja, ya que no es un tramo vertical como tal. No sé si esto, se pueda referenciar o explicar de alguna forma más formal.
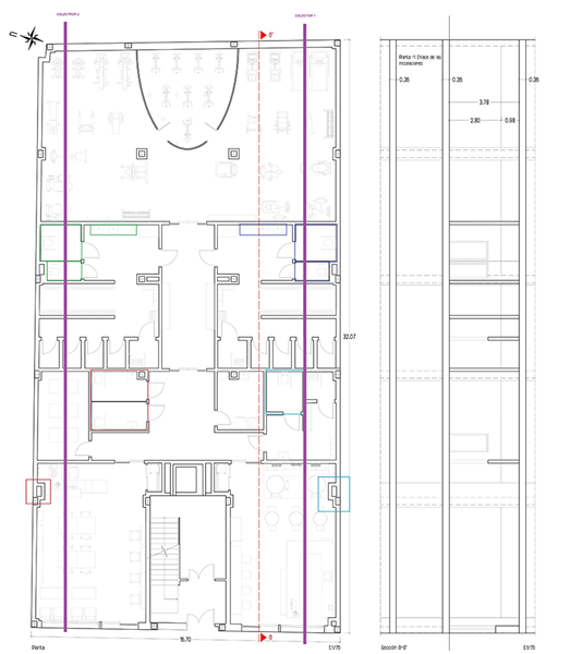
La otra duda que se me plantea es conocer cuál es la mejor manera de conectar los aparatos de mi planta baja a la red de saneamiento colgada que discurre justo por debajo de la misma. Creo que la manera correcta sería conectarlos a los colectores, pero desconozco si tengo que conectarlos directamente a las bajantes que discurren por los patinillos y que descargan el agua de los pisos de las plantas superiores (añado imagen referenciada con colores). El sistema de climatización y ventilación se encargará de ventilar. Si no me he explicado con claridad, no duden en preguntarme.
Gracias
