Es necesario poner juntas de dilatación en suelo laminado

Quiero poner el suelo laminado en una vivienda unifamiliar. ¿Es necesario poner junta de dilatación en todas las puertas?

He leído que los fabricantes dicen que si, pero algunos expertos dicen a no es necesario.

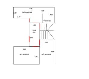
Adjunto plano aproximado de primera planta.

Muchas gracias y un saludo.

1 respuesta

Respuesta
2

El poner junta de dilatación en todas las puertas no es una norma fija. Dependerá siempre de la distancia y lo largo que sean las piezas que atraviesen las puertas y en que sentido atraviesen.

Se necesita con más motivo junta de dilatación en una pieza de más de 5 metros colocados a lo largo, que en una colocada a lo ancho [al haber menos empalmes hay menos margen de ajuste para dilatar y se combaría hacia arriba sólo el la zona más larga (zona que se unen por las puertas)].

Es necesaria junta de dilatación en las puertas cuando cambie la dirección de las lamas. Lo normal es poner la dirección de las lamas a lo largo en una habitación rectangular. Si la habitación que se comunica por la puerta tiene una dirección perpendicular lo lógico cambiar las lamas de dirección y allí habría que poner junta de dilatación.

Es lógico hasta cierto punto, porque también hay una norma estética que dice que la lamas

Estén orientadas hacia donde dé la luz de la ventana, para que se note menos la unión de las piezas a lo ancho.

Según tu diseño el pasillo es muy estrecho y largo y ponerle las lamas a lo ancho no quedaría bien y en ese caso no podrías unir el acceso del pasillo con la habitación 1 y la 2, pues quedarían las lamas sin concordancia con las habitaciones y en cambio si podrías unir con la hab.3.

En caso que quisieras que la dirección de las lamas de la habitación 1,2 y pasillo coincidieran a lo largo si te diría que es excesiva la distancia porque las puertas coinciden y llegaría en alguna zona a 10 metros.

Mi consejo es que pongas juntas en las puertas de la H1 con pasillo, H2 con pasillo y no en H3 con pasillo. Y las lamas las pongas a lo largo. Es solo un consejo, Si lo pones a lo ancho el pasillo y la H3 no necesitas juntas de dilatación.

Creo que lo entiendo, mi intencion es poner el suelo a lo largo, perpendicular al pasillo, así que tendría que poner junta.

Si lo pongo a lo ancho, no seria necesario ninguna junta?

Si pones el pasillo a lo ancho, no creo que haga falta ninguna junta excepto la que va del pasillo a la H3, ya que esta quedaría también a lo ancho si no lo haces.

De todas formas asegúrate que en todas las paredes queda una junta de dilatación de al menos un centímetro. Y si antes de colocar los rodapiés ves que en alguna zona se levanta, porque roce con la pared, corta esa zona, para que quede un cm de separación. No te arriesgues, que puede que cuando cambie la temperatura tengas problema porque ha dilatado y ha subido el suelo y aunque tiene solución, luego es más complicado.

Añade tu respuesta

Haz clic para o

Más respuestas relacionadas