Pregunta en
Carpintería
y en 2 temas más
de
Que cristal me interesa más para el ruido y calor?
Voy a cambiar las ventanas antiguas de aluminio por unas de PVC. Tengo muchísimo ruido de trafico y muchísima calor en verano. He solicitado presupuestos para el cambio de ventanas y los que más me convencen son estos dos pero son combinaciones muy...
Pregunta en
Carpintería
y en 2 temas más
de
Como ajustar una puerta de PVC
Tengo una puerta de PVC y quiero saber como puedo ajustarla, ya que me deja una rendija en el lado de la cerradura. Las bisagras tienen 3 puntos de ajuste. Me gustaría saber que hace cada punto de ajuste.
Pregunta en
Ventanas
y en 2 temas más
de
Ventana oscilobatiente de una hoja o de dos?
Vamos a cambiar las ventanas de casa (Madrid capital), actualmente tenemos correderas, y vamos a poner oscilobatientes, unas "Kommerling 76". Tenemos duda en el dormitorio, si poner una hoja o dos. Más o menos el tamaño de una hoja serían unos 86-88...
Sin respuestas
Pregunta en
Carpintería
y en 2 temas más
de
Bombín y escudo en puerta PVC

Sin respuestas
Pregunta en
Arquitectura
y en 2 temas más
de
Para un hueco de 3x1,4m: ¿Mejor una ventana o dos?
Voy a cambiar las ventanas correderas de aluminio de mi casa por unas de PVC. Una de ellas es un ventanal de 3m de ancho por 1,40 de alto (con un fijo de 40cm). El tema es que en casi todos los sitios nos presupuestan una ventana con tres hojas...
Pregunta en
Ventanas
y en 4 temas más
de
¿Qué fabricante es mejor, Gealan o Replus?
Entre todas las ofertas, me decido entre dos fabricantes, pero no se decidirme cual es mejor, tenemos dos tipos de ventanas. El modelo A son ventanas normales de 1 o 2 hojas abisagradas. El modelo B son puertas elevables correderas para un ventanal...
Pregunta en
Ventanas
y en 4 temas más
de
¿Qué Ventana poner, pvc Kommerling o Summun?
Estoy pidiendo presupuestos para cambiar las ventanas de mi casa ya que ahora mismo tengo un aluminio de muchos años con cajones de persianas de los antiguos y el aislamiento es mínimo, la cosa es que me han pasado 2 presupuestos, 1 de kommerling y...
Pregunta en
Carpintería
y en 4 temas más
de
¿Qué color de tintado se puede aplicar a ventanales de aluminio/pvc en el cerramiento de una terraza?
Tengo una terraza de 6 metros de largo por 1 metro de ancho y 2.60 metros de alto, para el próximo año quisiera hacer un cerramiento, para aislarme de los golpes en la calle de los chatarreros, gritos, y aislarme del frio de invierno Todo mi edificio...
Sin respuestas
Pregunta en
Carpintería
y en 2 temas más
de
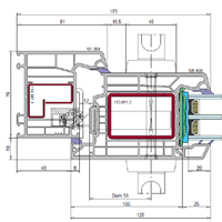
Valoración sobre idoneidad y Presupuesto ventana y puerta PVC por cambio de las antiguas de aluminio
Quisiera saber si es adecuada la opción que me ofrecen para una ventana y puerta de acceso a patio posterior con las que se quiere aislamiento sonoro y térmico fundamentalmente. PRESUPUESTO: VENTANA. 200cm ancho por 125cm de alto con persiana MODELO...
Pregunta en
Arquitectura
y en 4 temas más
de
Duda en ventanales para chalet
CarpinteríaVentanas Marta Garridohace 1 hora Presupuesto ventanas pvc vs aluminio Voy a hacer una reforma en un chalet y tengo dudas de si poner los ventanales de aluminio o pvc, y me gustaría saber cual creéis que es mejor prosupuesto y mejores...