¿Se permite la instalación de equipo split de aire acondicionado y bomba calor en una cocina equipada con gas natural?

Es posible y legal instalar un equipo de aire acondicionado con bomba de calor en la cocina de mi vivienda, ¿qué incluye un calentador estanco y una cocina de encimera provista 4 fogones ambos alimentados con gas natural?
El equipo que me han vendido ya está en mi domicilio, un ático muy caluroso en la última planta, un 9º piso que actualmente está muy mal aislado, (en verano la temperatura que soportamos en el inmueble alcanza los 37ªC) que este año, por dictamen del ITE, está pendiente del cambio del tejado (actualmente de uralita, con una pequeña cámara de apenas 35 ó 40 cm) para el que indica se instale en su sustitución, panel sandwich de acero con aislamiento térmico sobre correas metálicas instaladas sobre el soporte de la cubierta)
El equipo de aire acondicionado con bomba de calor que recibí y estoy esperando me instalen, es un SPLIT 2X1, marca Daikin, que consta de:
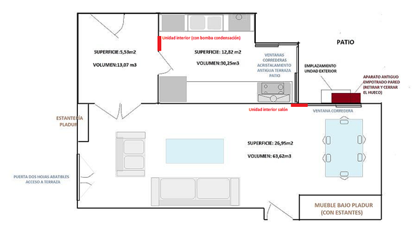
-1 unidad interior DAIKIN ATXS25K3V1B para la cocina, que va provisto de bomba de condensación (porque el emplazamiento elegido estará situado lejos de la ventana, al parecer con el fin de mantenerlo alejado del calentador estanco y de la cocina de encimera que esta provista de 4 fogones, ambos alimentados por gas natural.
-1 unidad interior DAIKIN ATXS50K3V1B para el salón
En principio ambos iban a compartir
-1 unidad exterior DAIKIN 3AMX52E4VIB2 que se instalaría en el patio de luces donde algunos vecinos de plantas inferiores ya tienen instalados otros equipos similares, pero cuya instalación he abortado por ser un aparato excesivamente voluminoso, (un error de cálculo que considero responsabilidad exclusiva del técnico enviado para valorar y hacer el presupuesto, por la tienda TIEN21), que si se instalaba, como estaba previsto, bajo la ventana del salón, en el referido patio, asomaba por su parte baja, tapando parte de ella.
Ahora en sustitución me ofrecen un modelo de tamaño más reducido, el DAIKIN 2MXS50H, según ellos de similares prestaciones...