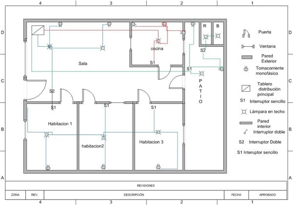
Cuantas rozas corresponden a una estancia de una vivienda
Soy peón de obra y pregunto aquí porque en mi trabajo nadie es capaz de explicarme ¿cuántas rozas tendría que hacer en una estancia de una vivienda? Sabiendo ya que en unas habrá más que en otras en función del numero de enchufes o tomas. Agradecería un ejemplo variado ilustrativo que contemple casos como el siguiente: para un punto de luz ¿una roza para tubo pequeño del punto de luz al interruptor y otra del interruptor a la caja de empalmes? Para tres cajitas adosadas (interruptor, enchufe y tv), ¿una roza para un tubo grande o para más?
1 respuesta
Respuesta de Gomzky ..
1



