Problema optimización 1 para valeroasm
Hola valeroasm! A ver si me puedes ayudar con estos problemas, que va a salir uno en el examen parecido y no los sé hacer y tengo el examen el lunes, sólo nos lo ha propuesto para que lo pensáramos... He hecho los dibujos en paint, así que no están muy bien...
Muchas gracias!
---------------------------------------------------------------------------------------------------------------
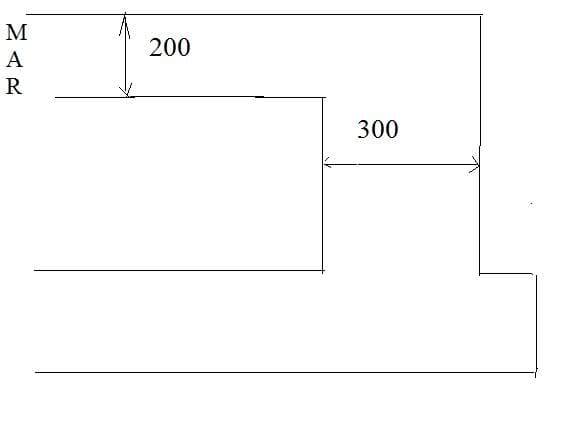
El barco entra por donde pone Mar, ¿Cómo tiene que ser de largo el barco para entrar?
Las distancias son: 200 m, y 300 m

1 respuesta
Respuesta de Valero Angel Serrano Mercadal
1
