Cocinas

0 seguidores
Este tema está pendiente de aprobación
Preguntar
Pregunta en y en 3 temas más de

Es necesario reforzar la encimera?

Nos acaban de instalar la encimera porcelánica de 1,2 cm en la cocina y nos surge una duda respecto al hueco del lavavajillas. En esa zona (60cm de ancho) no hay ningún tipo de refuerzo y, por tanto, la encimera está "volando" encima del...
Pregunta en y en 3 temas más de

¿Está prohibido usar cocinas de gas en interiores si no tienen válvula de seguridad para cortar el gas si se apaga la llama?

La pregunta es para España. Veo que todas las cocinas de butano de sobremesa ahora pone "para uso en exteriores" salvo las que tengan un sistema de seguridad por termopar. ¿Es este sistema obligatorio, y en ese caso, en qué normativa viene?
Pregunta en de

Valladolid - anuncios clasificados de empleos - hostelería, turismo y restaurantes

Lesiones y enfermedades laborales de Las cocinas suelen estar abarrotadas y llenas de peligros potenciales, como hornos calientes o suelos resbaladizos. "Los cocineros, todos los demás", en particular, tienen una de las tasas más altas de lesiones y...
Sin respuestas
Pregunta en y en 2 temas más de

Identificar granito de la encimera

Necesitaría identificar el nombre del granito de la cocina para tratar de encargar una pieza nueva con el material más parecido. [IMG]http://i241.photobucket.com/albums/ff37/octa1971/Mobile%20Uploads/IMG_20190811_234212.jpg[/IMG] Se que los granitos...
Pregunta en de

Paneles de vidrio para el frontal de la cocina

He visto que hay paneles de cristal templado decorados para el frontal de la cocina, quería saber si lo aconsejan y si es cómodo, ya que es para ponerlo en la zona de la campana
Sin respuestas
Pregunta en y en 2 temas más de

Nodor gci 316 A piezoelectrico no funciona

Después de la limpieza de la encimera han dejado de funcionar 2 de los 4 piezoeléctricos que dan la chispa de encendido. ¿Alguna sugerencia de por dónde empezar a mirar o sólo será cuestión de esperar a que se seque del todo (si le ha entrado agua en...
Sin respuestas
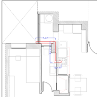
Pregunta en y en 4 temas más de

Funcionará bien una campana extractora con varios codos en el tubo de salida?

Esta es la opción de extracción de humos que nos indica la arquitecto para poder colocar una campana convencional. ¿Creéis qué funcionará bien teniendo tantos codos (incluyo foto)? ¿Será mejor esta opción o colocar una campana de filtro de carbono?...
Pregunta en de

Tengo una cocina eskabe , y quiero destapar los picos, pero no los veo ?

Como hago para destapar los picos de una cocina marca eskabe fortte, ¿Si en lugar de donde irían los picos esta solo el agujero de la hornalla?
Sin respuestas
Pregunta en y en 2 temas más de

Necesito elegir una buena campana para cocina/salón abierta (34 m2 + pasillito 6m2) que sea eficiente

Estoy de reforma y necesito saber que campana vamos a poner, me gustaría que fuera de techo y sobre todo que realice su función ... Estado mirando y me aconsejan NODOR DEIMOS14O pone que extrae 1580m3/h y 405 pa. No conozco la marca pero he pedido...
Sin respuestas
Pregunta en y en 4 temas más de

Bisagras de puerta de cocina de Integr. Total no coindiden con nueva lavadora de Integr. Total

En mi cocina tengo la lavadora, lavavajillas y combi integrados. Ahora se me ha estropeado la lavadora y la he tenido que reemplazar por otra nueva. Entonces, al instalarla, me he encontrado con el problema de que las bisagras de la puerta de la...