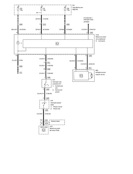
¿Por qué no funciona a/c en Ford Fiesta?
Tengo un Fiesta del año 2003 con motor 1.4 diesel y no le funciona el a/c, cuanto le doy al botón el motor se sube de revoluciones pero no oigo que arranque el compresor. He comprobado los fusibles y están bien, quería comprobar el relé pero no consigo saber dónde está y cual es. Gracias.
1 respuesta
Respuesta de brunocom
1

