Pregunta en
Ingeniería Eléctrica
y en 2 temas más
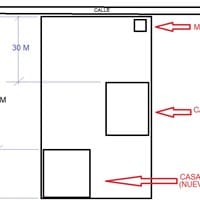
Sección de cable de acometida menor al tiraje desde medidor a tablero seccional. ¿Se puede?
Puntualmente quiero poner un cable de 16mm2 desde el medidor hasta el tablero seccional. El cable que baja desde el poste al medidor no tengo idea de que sección es. Me dijeron que debe ser de 10mm2. Si alguien tiene la certeza o sabe cómo puedo...
Pregunta en
Ingeniería Eléctrica
y en 1 temas más
