Respuesta
en
Bioquímica
y en 2 temas más
a
Prueba de reacción de bial en bioquímica
En esta página se describe la reacción por la que preguntas: http://danielamartineze.blogspot.com.es/2012/09/identificacion-de-carbohidratos.html
Respuesta
en
Química
a
En la fórmula: Q=mCpΔT, las unidades de medición de Q es joule ; la de m es gramo y la de T es °C. Determine las unidades de Cp.
a) Si despejas Cp tienes Cp = Q / M · Δt así que sus unidades serán las de [energía / (masa · temperatura)]. En este caso, si Q está en J, M en g y Δt en ºC, las unidades de Cp serán J / (g·º C) Fíjate que no están en un sistema coherente de...
Respuesta
en
Matemáticas
a
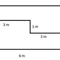
Como convierto 6m de largo en 9m de largo y 3m de ancho en 2m de ancho
Respuesta
en
Física
a
Cual es la gravedad de dos planetas con distinta densidad pero misma masa
Si dos planetas A y B tienen la misma masa, pero B tiene densidad doble que A, necesariamente B ha de tener menor volumen y, por tanto, menor radio. Comparemos entonces los radios y veamos cómo influyen en la aceleración de la gravedad, g. Para un...
Respuesta
en
Química
a
Como son los pasos de oxido reduccion para resolver un reaccion quimica?
¿Te han propuesto esta reacción? ¿Cuál es el nivel que estudias? Sólo hay un oxidante, que es el ion nitrato NO3(-), y, según la reacción, éste se reduce a NO. Hay dos sustancias que pueden ser oxidadas por el ion nitrato, como el ion Cr(3+) y el ion...
Respuesta
en
Química
y en 3 temas más
a
17. Un globo lleno inicialmente con 0,5 moles de gas se contrae reversiblemente desde un volumen inicial Vi = 1 L hasta un volum
En un proceso isotérmico la temperatura permanece constante, lo cual implica que Delta U = 0 (U=energía interna). Por tanto, por el primer principio, el calor desprendido por el sistema ha de ser igual al trabajo realizado sobre él. Con el convenio...
Respuesta
en
Química
y en 2 temas más
a
14. El etanol es un alcohol que se utiliza en numerosas aplicaciones; sin embargo, una de las más recientes es como biocombustib
La combustión del etanol es Conociendo las entalpías de formación de cada una de las sustancias que intervienen en la reacción, la entalpía de reacción se calcula así: Restamos la suma de las entalpías de formación de los productos, multiplicdas por...
Respuesta
en
Química
y en 2 temas más
a
3. Cuando 50 mL de una solución 0,1 M de nitrato de plata AgNO3 son mezclados con una solución 0,1 M de ácido clorhídrico HCl en
¿Y cuál es la pregunta?
Respuesta
en
Química
y en 3 temas más
a
5. Una muestra de cobre de 30 g cuya capacidad calorífica es CpCu = 0,685 J/g K se sumerge en un calorímetro a presión constante
El calor absorbido es positivo. El calor desprendido, negativo. Cuerpo caliente: el agua. Desprende calor, que pasa al cobre. Cuerpo frío: el cobre. Absorbe calor del agua. Cuando se alcanza el equilibrio ambos cuerpos están a la misma temperatura:...
Respuesta
en
Química
y en 3 temas más
a
11. Al trabajar con nitrógeno en la conservación de alimentos, algunas veces dicho gas es trasvasado de un recipiente de 2 L a o
Si pasas un gas de un recipiente de 2 L a un recipiente de 1,7 L tienes que comprimirlo. Y con la compresión, lo que le ocurre es que su temperatura aumenta, no disminuye. El ejercicio no está bien propuesto.
