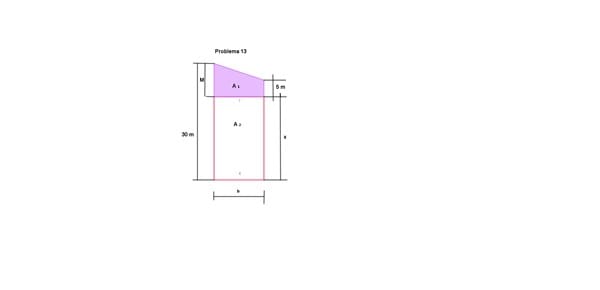
Determinar en la figura geométrica el valor de "x" para que el área "A1" sea el doble de la otra.
La pregunta del problema dice lo siguiente: ¿En la figura geométrica del esquema determinar el valor de "x" de manera que el área sombreada "A1" sea l doble de A2?.
No pido resolución si no que me orienten sobre como resolverlo ya que tengo la duda si es un trapecio, especialmente la parte sombreada "A1". La figura no esta hecha a escala.

1 Respuesta
Respuesta
1

