¿Vano máximo entre pilares? En remonte
Bueno pues estoy en proceso de empezar el remonte de una vivienda. Mi padre que fue el que construyo la vivienda me dice que hay una parte en la que no DEBO construir pues dice que el vano entre los pilares es muy largo y esta al limite esa zona. Os pongo en situación:
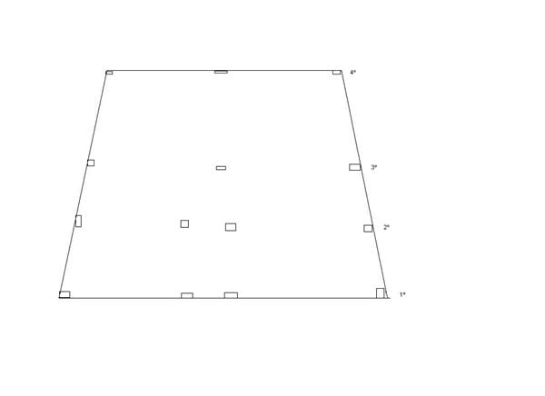
Vivienda con una cubierta de 189.93m2 con 14 pilares
La separación entre pilar y pilar +- es de 4´40m hasta que llega al 3er y 4º pilar donde la distancia es de 5,49m.
La altura de la edificación actual es de 4,20m.
Adjunto un pequeño dibujo con paint para orientar más o menos.

Quiero aclarar que tengo contratado un arquitecto, y ya realizamos unos testigos, pero quiero oír opiniones al respecto para saber si la zona entre el 3º y 4º pilar puede ser peligroso.
Respuesta de pedro nelson fernandes martins
1
1 respuesta más de otro experto
Respuesta de Gastón Salas
1
