Cómo instalar un tubo en el tiro de una chimenea
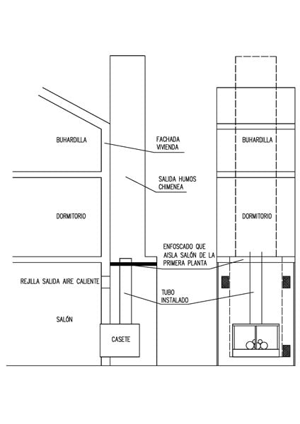
Tengo instalada en el salón de casa una chimenea tipo casete, la cual lleva incorporada una pequeña turbina que permite la salida de aire caliente por unas rejillas que tengo situadas próximas al techo del salón. El tubo de salida de humos sólo está instalado hasta el primer forjado de la casa, es decir, entre el salón y la primera planta. Me gustaría instalar unas salidas de aire caliente tanto en la primera planta como en la buhardilla para aprovechar mejor el calor residual de la chimenea. No sé si esto lo puede hacer uno mismo o como hacerlo, o si es mejor contratar un profesional. Me da pavor pensar que tuviera que abrir todas las paredes de arriba abajo para meter los tubos o si resultaría extremadamente caro. A ver si alguien me pudiera dar una pequeña idea.
Muchas gracias
Jaime
{"Lat":40.743713,"Lng":-3.60379149999994}


Comentario borrado por el autor - ANA GUTIERREZ FUENTES