Instalación eléctrica nueva led en piso reforma
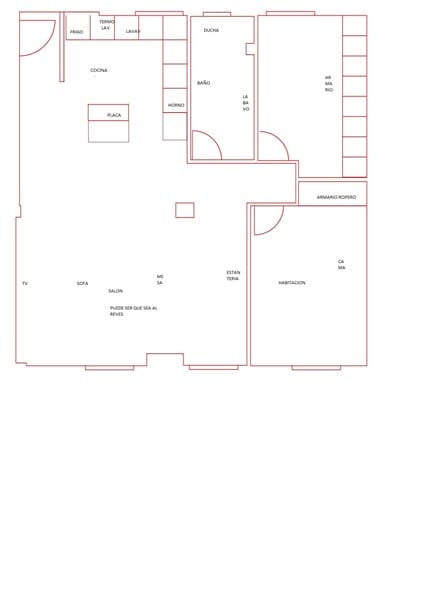
Estoy realizando reforma integral en mi piso y con el tema electricidad ando un poco perdido. Adjunto archivo pdf de como va a quedar el piso. Mis dudas y por consiguiente las preguntas.
1- Led tiras, RGBW de 220 o 12-24 v para salón y cocina.
2- Cuantos mecanismos necesitaría, enchufes, interruptores etc...
3- Que tipo de luz poner en techos.
4- Tema domótica al menos dejarlo planteado para más adelante, igual que si que he pensado pasar tubo para motorizar 3 persianas, pero el dinero no da para todo.
Y cualquier sugerencia se admite, otra cosa es que pueda, me guste.
Ante todo Gracias.
