Colores para dormitorio de matrimonio
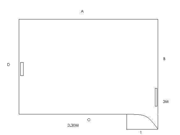
Mi dormitorio es muy pequeño apenas 3m por 3.5 solo para la cama y las mesillas, llevo un vestidor aparte.
No se como pintarlo, es más bien luminoso, pues tiene una puerta para salir al jardín, estaba pensando en poner la pared del cabecero en un turquesa suave, y el resto en un blanco roto o beig no lo tengo muy claro, los muebles serian en marrón chocolate, el cabecero lo haría yo y seria tapizado en una tela marrón chocolate con algún decorativo turquesa, ¿os parece buena elección para un dormitorio? ¿Me aconsejáis otra idea?
Creo que existen distintas técnicas de pinturas, ¿me aconsejáis alguna para la pared del cabecero?
No se como pintarlo, es más bien luminoso, pues tiene una puerta para salir al jardín, estaba pensando en poner la pared del cabecero en un turquesa suave, y el resto en un blanco roto o beig no lo tengo muy claro, los muebles serian en marrón chocolate, el cabecero lo haría yo y seria tapizado en una tela marrón chocolate con algún decorativo turquesa, ¿os parece buena elección para un dormitorio? ¿Me aconsejáis otra idea?
Creo que existen distintas técnicas de pinturas, ¿me aconsejáis alguna para la pared del cabecero?
1 Respuesta
Respuesta de keopxa M
1

